
사진




Elevation
변화하는 대학가 주변 동네
요즘 봉천동 일대는 수많은 공사 현장들로 골목길마다 어수선하다. 오래된 단독주택이나 저층형 공동주택들이 철거되고, 급증하고 있는 인근의 주거 수요를 수용하기 위해 고층의 주거 유형으로 탈바꿈하고 있다. 특히 계획 대지가 포함된 쑥고개길 주변은 토지이용 계획상 준주거지역으로, 일조 사선의 제한이 없으며 용적률 400%까지 가능하다. 이에 따라 신축 현장들은 법규적 장점을 최대한 활용하는 방식으로 개발되어 고층, 고밀도 방식의 주거가 만들어지고 있다. 또한, 주거의 유형도 급변하고 있다. 대지 주변으로 기존에는 하나의 가구에 2~3개 정도의 침실이 있던 다가구나 다세대주택이 대부분이었다. 그러나 1인 세대가 점차 늘어나고 대학가 주변이라는 위치적 특성으로 점차 원룸이나 오피스텔 형식의 소규모 주거 유형이 신축되는 추세다. 청룡산 산비탈을 따라 쑥고개길까지 흘러내려 오던 봉천동의 오래된 주거 풍경은 면적이 작은 개별 세대들이 고밀도로 군집을 이루며, 용적률 게임이 형상화된 모습으로 점차 변해가고 있다.




Elevation
주거 유형의 다양한 가능성
건축주는 삼십 여년 동안 봉천동의 작은 상가주택에 살고 있었다. 오래된 상가주택에서 그때그때 필요에 따라 증축과 개보수를 반복하며 지내왔지만, 어느새 건물의 노후화는 한계에 이르렀고 신축을 결심하게 됐다. 초기 계획 단계부터 건축주와의 협의 과정을 통해 거주 방식에 대한 몇 가지 기본 원칙을 세웠다.
1. 임대 세대수는 무리하게 늘리지 않을 것
2. 세대별 전용 면적은 가능한 여유 있게 할 것
3. 다양한 평면 유형을 제공할 것
4. 근린생활시설과 임대 세대의 간섭을 최소화할 것




Site Plan

Section
이 같은 원칙에는 이유가 있었다. 서울의 대학가 주변은 높은 임대료에 비해 거주 환경이 열악한 편이나, 거주 목적의 집을 찾아다니는 임차인은 울며 겨자 먹기로 그곳에 거주할 수밖에 없는 게 현실이다. 이에 건축주는 임차인에게 쾌적한 거주 환경을 제공하고, 임차인은 그에 합당한 비용을 낸다면 서로가 만족할 수 있는 집이 되리라 생각했다. 층마다 세대수를 제한해 세대별 프라이버시를 확보하며 이웃 간의 분쟁 요소를 줄이고자 했다. 세대수 조정에 따라 절약된 공간은 세대별 전용 면적 및 공용 면적에 배분하여 더욱 여유로운 주거 환경을 제공했다.




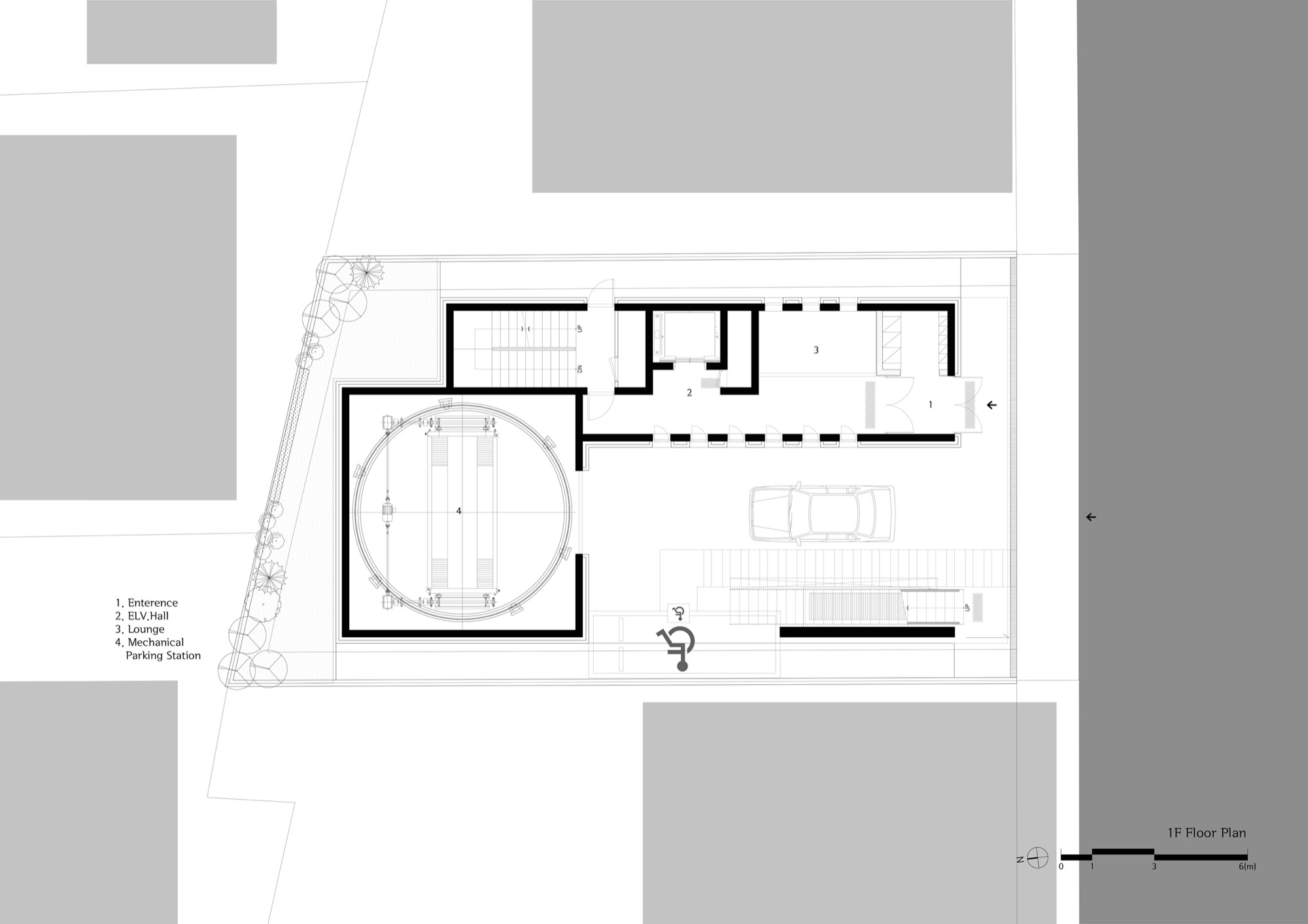
Plan_1F

Plan_2F: 근린생활시설
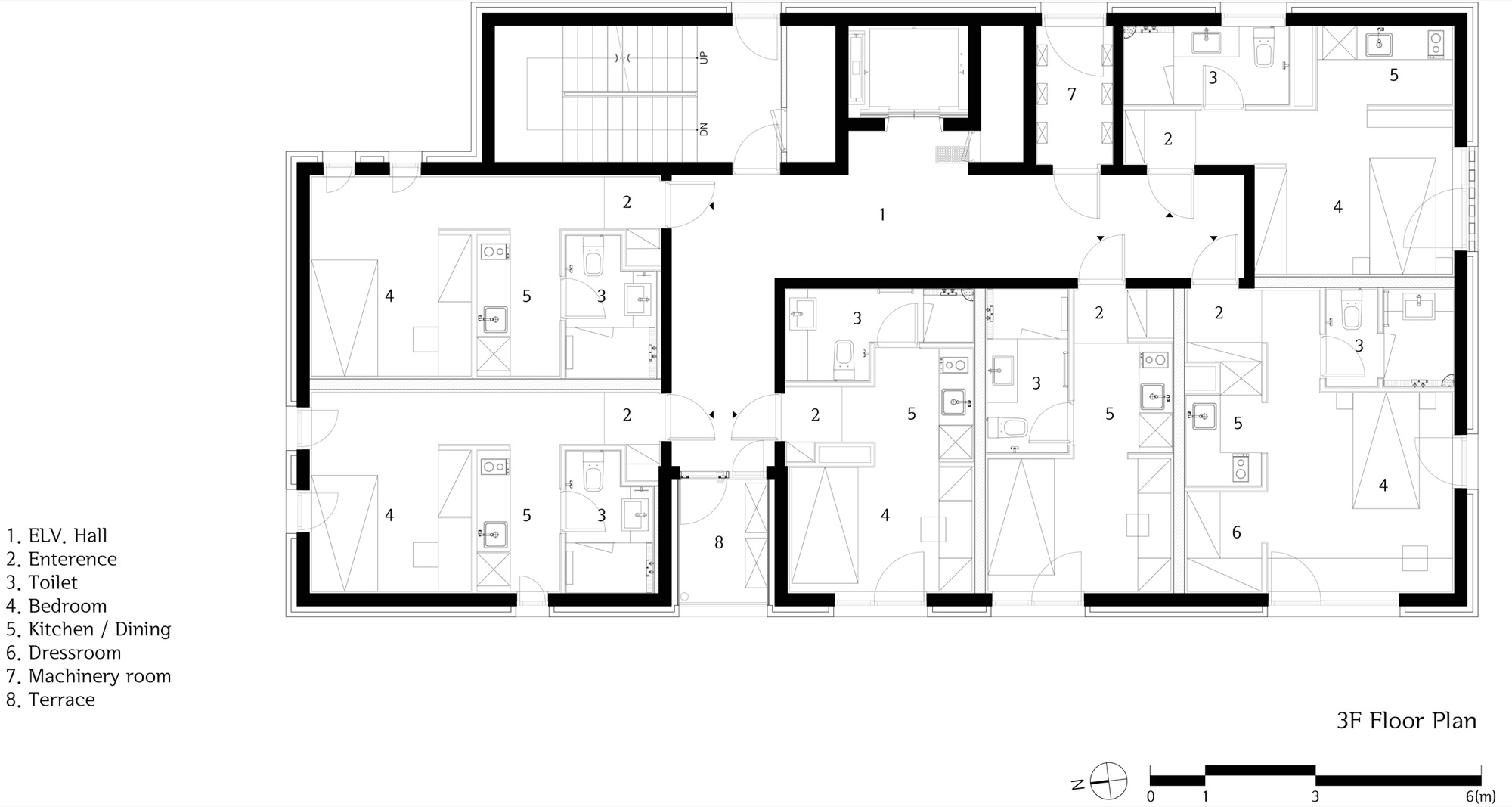
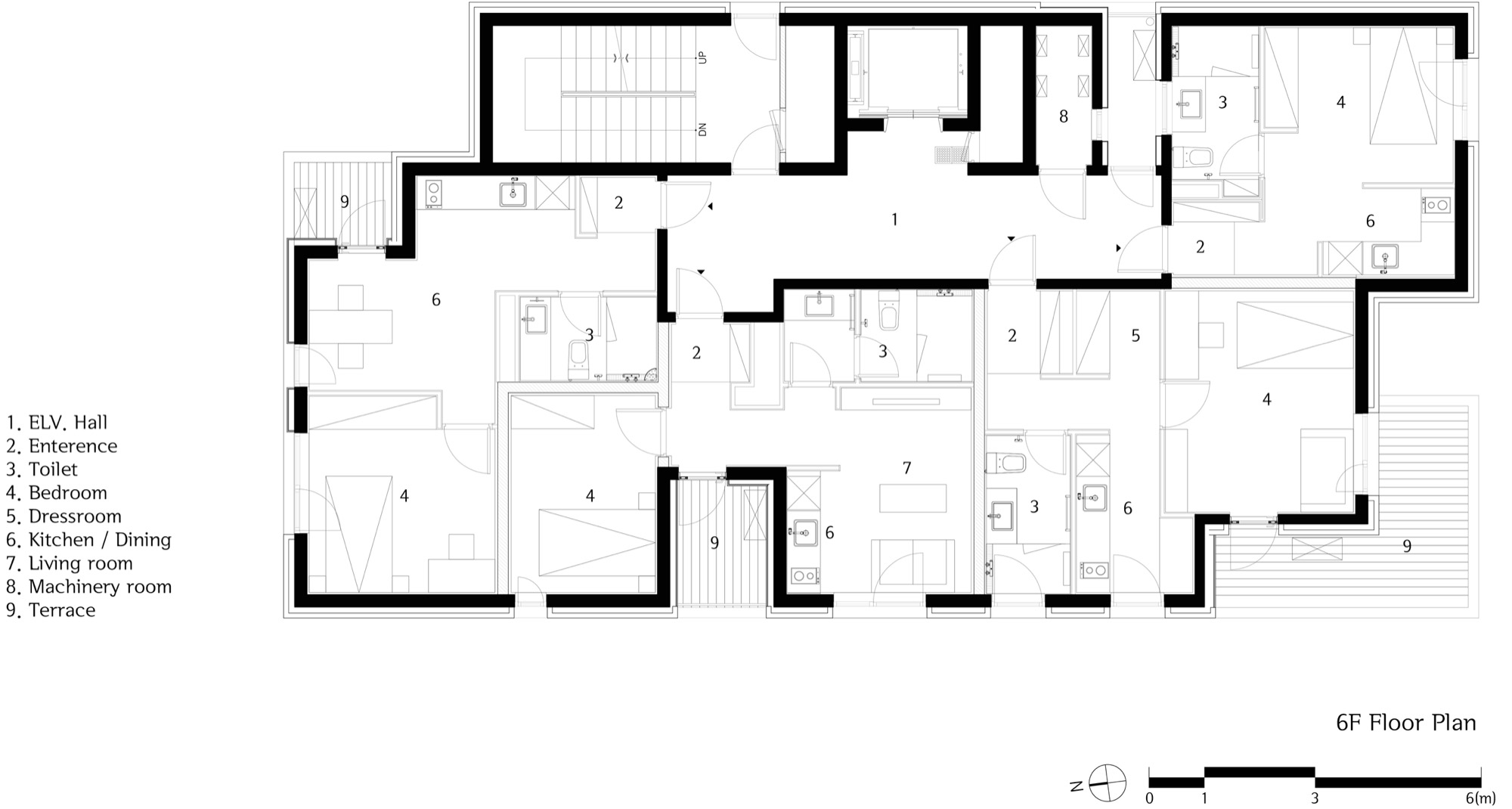
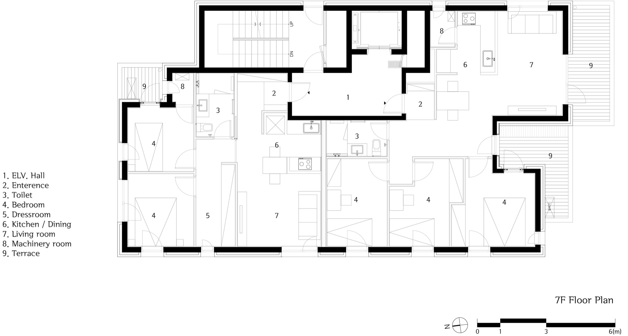
층별 프로그램은 크게 세 가지로 분류된다. 2층은 근린생활시설, 3~6층은 오피스텔, 7~10층은 다세대주택이다. 1층에서 근린생활시설과 주거용 공간, 주차 공간의 출입 동선은 상호 간섭되는 상황을 최소화하기 위해 세 갈래로 분리했다. 저층부 오피스텔은 다소 활동 빈도가 높을 것으로 예상하는 1인 세대를 위한 원룸으로 구성했다. 세대별로 면한 향과 조망 등의 조건이 다르기에 평면 구성 방식이나 창의 크기, 위치 등을 적합한 공간을 선택할 수 있게 된다. 상층부의 다세대 주택은 2~3인의 가족 세대가 생활할 수 있는 정도의 규모로, 전면도로의 소음원과 멀어지고 남측으로 펼쳐진 청룡산을 크고 넓게 마주할 수 있어 보다 안정적인 거주가 가능할 것으로 예상한다. 다만 반복되지 않는 평면이 수직적으로 적층되는 방식은 구조적인 측면에서 불리해 질 수 밖에 없다. 상부 구조가 하부로 내려오는 과정에서 불규칙적으로 전이됨에 따라 하부 구조는 그 부담을 안게 된다. 이런 때에는 통상적으로 전이보 등을 이용하기도 하나, 구조 사무소와의 협의를 통해 내력벽과 비내력벽을 적절히 구분하고 건축물의 하중을 줄이는 방식을 통해 무분별한 전이보의 발생을 줄였다.




Plan_3F: 오피스텔

Plan_4F: 오피스텔

Plan_5F: 오피스텔

Plan_6F: 오피스텔
일상이 만드는 거주풍경
대지의 형상은 남향에 면한 폭이 좁고, 긴 장방형이다. 이러한 조건에서 남향에 면할 수 있는 세대수가 제한적이며. 일부 세대는 서향이나 북향이 될 수밖에 없다. 더욱이 초기 계획 당시 대지 동쪽으로 11층 규모의 오피스텔이 이미 시공 중이었기에 동쪽에 창을 내기조차 부담스러운 상황이었다. 어느 것 하나 녹록지 않은 대지 조건이었다. 다만 남측 도로의 건너편으로 청룡산의 산세가 멋지게 펼쳐져 있고, 그 밑으로 작은 집들이 보기 좋을 정도의 밀도로 오래된 동네 풍경을 만들고 있어 그나마 위로가 됐다. 좁고 긴 대지는 면적이 그리 크지 않았기에 건축주의 요구 사항을 반영하기 위해 고층화되었는데, 11층 규모의 이웃 건축물과 어깨를 나란하고 서있기에는 보행자들과 도로의 맞은 편 이웃들에게 시각적 부담을 줄 것으로 예상했다. 이에 도로에 면한 파사드는 저층부는 가로의 연속성을 위해 인접 대지 건축물과 외벽의 위치를 정렬하고, 상층부로 올라가면서 점차 뒤로 물러나는 방식을 통해 매스의 위압감을 줄이고자 했다. 이러한 방식을 통해 층마다 다양한 형상의 테라스 공간이 자연스레 만들어지고, 청룡산과 마주하는 외부 공간을 마음껏 누릴 수 있게 되기를 바랐다.




Plan_7F: 다세대주택

Plan_8F: 다세대주택
각각의 테라스에서 어떤 이는 일광욕을 즐길 것이고, 어떤 이는 화초를 키울 것이며, 어떤 이는 빨래를 널고, 어떤 이는 커피를 마시며 책을 읽고 있을 것이다. 다채로운 테라스 풍경을 통해 화운원의 거주민과 쑥고개길을 거니는 이웃 주민이 서로 마주하고 소통하게 될 것이다. 그리고 언젠가는 화운원도 점차 나이가 들어 맞은편 산등성이에 오밀조밀하게 모여 사는 동네 이웃집들의 정겨운 풍경을 닮아가기를 상상해본다.




Plan_9F: 주인세대

Plan_10F: 주인세대
















