
사진




Elevation

Elevation
버려졌던 간격
사람들 대부분은 주어진 조건 안에서 최소한의 법과 질서만 지키며 최대한의 효율을 생산해 내려 한다. 하지만 최소한의 질서만 지키겠다는 강박감이 모이면 결국 건축가는 대지를 꽉 채운 상자 같은 건물을 만들어낼 수밖에 없다. 질서를 지키면 손해를 본다는 발상 안에서 대지 안의 공지들은 그저 버려지는 간격에 불과했다.




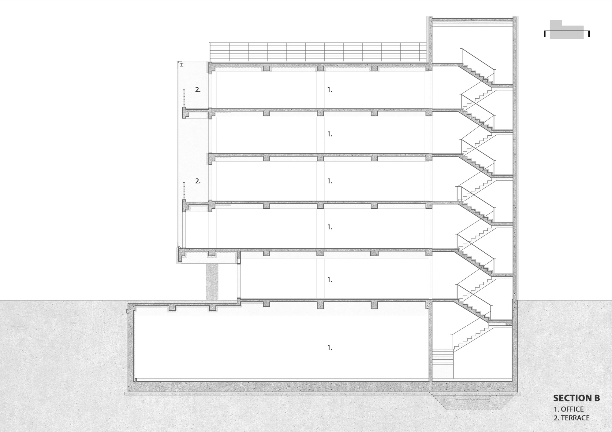
Section

Section
‘오버 더 레이어’는 일조권 사선으로 일정 거리 이상 물러나야 했던 법적 최소 공간을 오히려 최대공간으로 내어주며 그사이에 켜(Layer)를 겹겹이 쌓았다. 세로로 내부 공간과 외부공간을 나눌 기준 벽들이 교집합적 공간을 만들고 가로로는 각 층의 외부공간들이 각기 다른 방향의 풍경을 실내로 끌어들인다. 이렇듯 디자이너가 건축법을 여유롭게 바라볼 수만 있다면, 그 속에서 많은 가능성과 공간을 찾게 된다.






Site Plan




Plan_B1




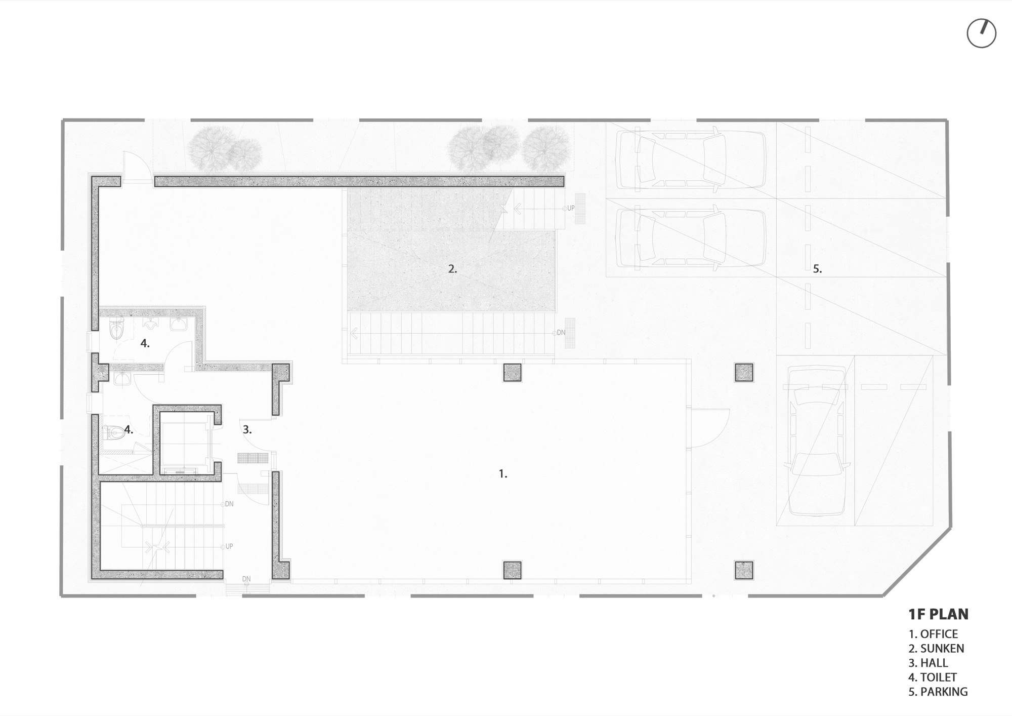
Plan_1F




Plan_2F





Plan_3F




Plan_4F




Plan_5F
















