





Drawing
해달집은 1973년경 광주 대단지 조성사업으로 만들어진 고밀도 경사 주택지, 성남 수정구 태평동에 자리했다. 건축주인 아버지를 대신해 아들이 의뢰를 요청했고, 설계를 함께 진행했다. 할아버지가 사들인 대지는 3대가 함께 살던 집이 있던 자리였다. 연로하신 아버지가 가진 옛집은 단층으로 유치원으로 쓰이고 있었다. 거주와 함께 임대 수익을 만들 수 있는 공동주택을 만들고자 가족을 설득하여 사업을 시작했다. 처음에는 근린생활시설을 1층에 둔 다가구주택을 원했지만, 공사비용과 인근 아파트 주거비용이 상승하면서 1개 층을 더 올려 다세대주택으로 변경되었다. 최종으로 지하 1층 근린생활시설, 1층 주차장, 지상 2~5층은 다세대주택으로 계획되었다.





Diagram
아버지와 함께 의류 관련 사업을 하는 클라이언트는 꽤 섬세한 안목을 가지고 있었다. 건축과 공사에 대해서도 열심히 공부하며 집에 대한 취향도 가지고 있었다. 적벽돌의 매시브한 디자인과 필로티 주차창이 외부에서 인식되지 않기를 바랐다. 세부적으로 지하층은 사진 스튜디오나 사무실로 사용할 수 있도록 높은 층고를 요구했고, 지상부는 인근 의료원 직원이나, 젊은 세대를 위한 다양한 타입의 집을 원했다. 요즘 트랜드에 맞게 넓은 주방과 거실이 통으로 구성된 LDK 공간을 요구했다.





Plan_B1

Plan_1F
성남 구도심에 자리한 대지 주변은 재개발 구역으로 지정되지 않았고, 개발의 움직임이 거의 없는 곳이었다. 남쪽으로 11m의 도로가 있어 남향 채광이 좋았고, 남측 외 3면에 높은 건물이 없어 3~4층에서도 조망이 좋았다. 인근에 성남시 의료원, 가천대, 모란시장 등이 있어 대학생 및 젊은 세대 인구가 비교적 많은 동네다. 전체 임대세대로 구성되는 다세대 주택으로 최근 급상승한 공사비 현실 속에서도 수익을 낼 수 있는 임대주택이다. 그럼에도 주변 아파트로 유입될 젊은 세대를 타겟으로 특화된 주거타입을 만들어야 하는 것이 과제였다. 또한, 인접 대지의 경사가 모두 달라 5개의 정북 일조사선을 받는 대지로 북쪽에 손실이 많았고, 이를 건축적 아이디어로 해결해야 했다.




Plan_2F
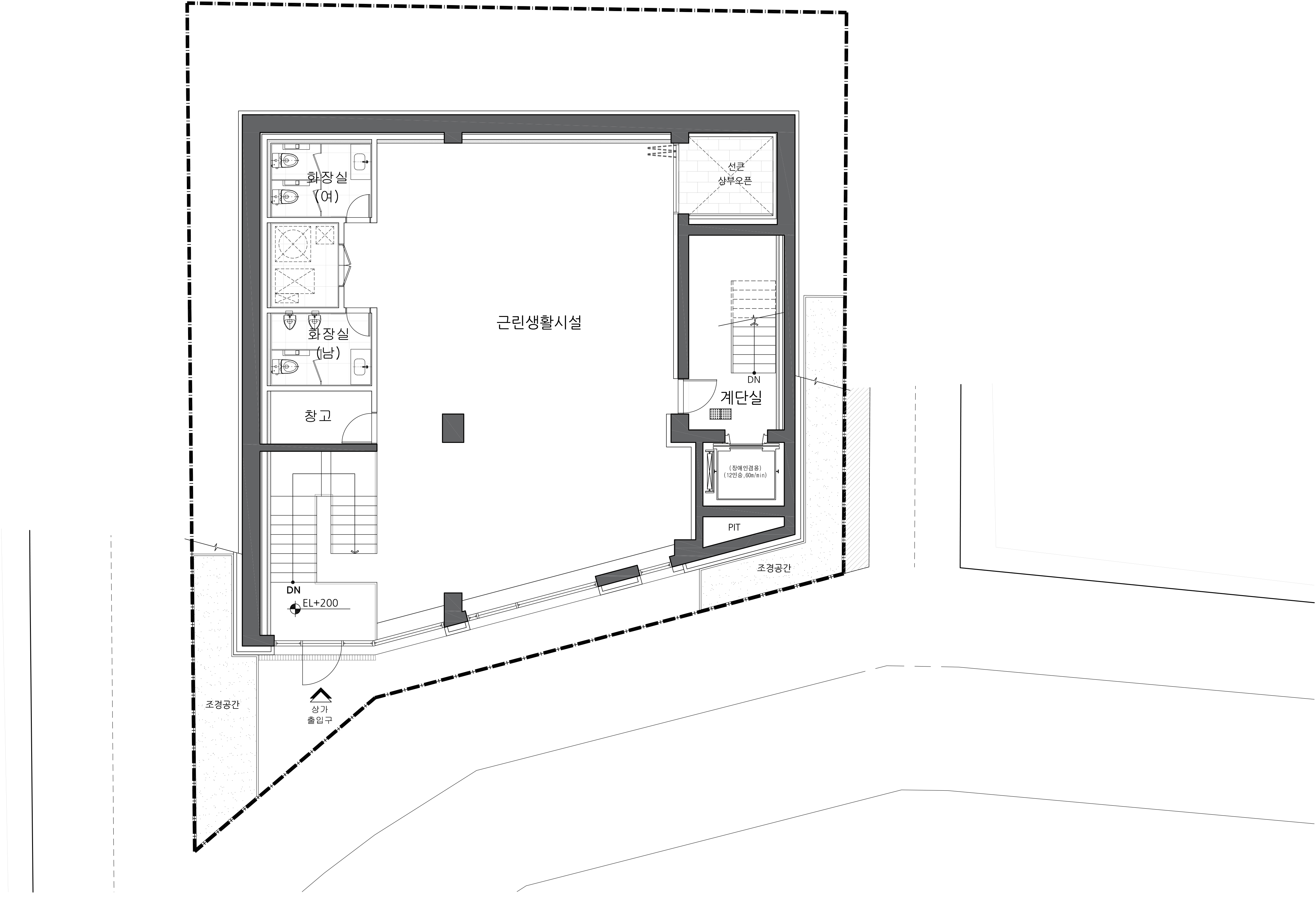
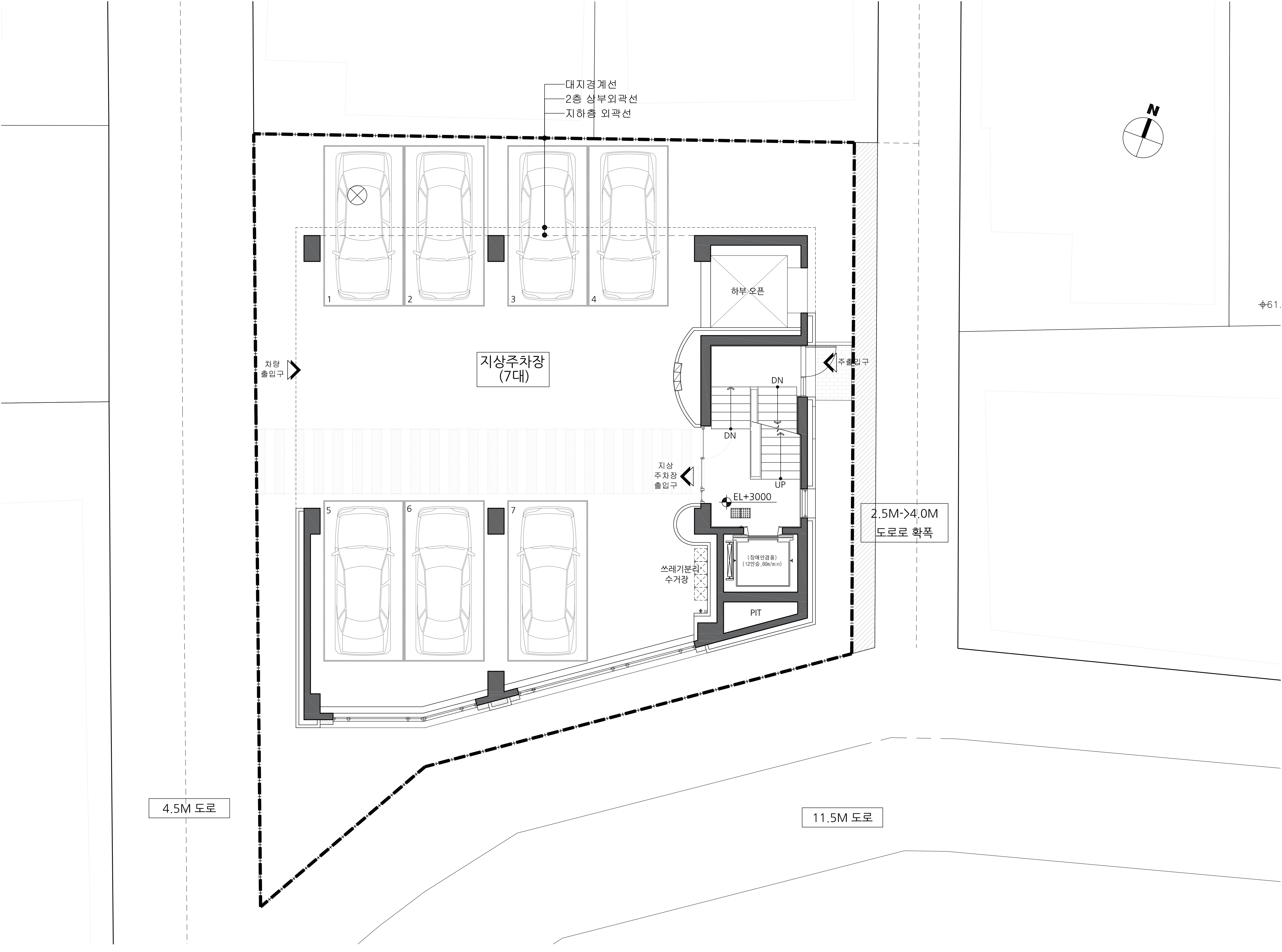
근린생활시설인 지하와 공용부인 필로티는 상가 접근성과 사생활을 보호할 수 있는 출입이 필요했다. 전면 대로변에 상가를 계획했고, 좌측으로 주차장과 주거 공용부를 계획했다. 지하 1층 상가는 사진 스튜디오나 풍부한 공간감을 가진 카페로 사용될 수 있도록 6m의 층고를 가졌다. 지하지만, 경사지의 대지의 특성상 전면 도로에서 1층과 같이 인지되는 곳으로 전면 창으로 충분한 채광이 들어온다. 필로티는 주차장으로 대지의 서 측 이면도로에서 진출입할 수 있고, 전면에서 주차장과 주거 출입구가 인지되지 않도록 계획했다.





Plan_3F

Plan_4F
정북일조 사선으로 북쪽은 층이 올라갈수록 점점 줄어드는 형태를 하고 있다. 6개의 서로 다른 세대를 어떻게 조합하는 것이 가장 효율적일지 많은 고민을 했고, 전면부 큰 집들의 기본적인 구조를 동일하게 한 상태에서 후면부 작은 집들의 조합에 따라 전면 세대의 깊이를 변형했다. 후면 세대는 정북 사선에 따라 만들어지는 테라스를 가진 집들로 만들어졌고, 복층이나 단층 스튜디오형으로 구성했다. 이로써 6개의 전 세대가 모두 다르지만, 공사의 효율과 비용을 절감할 수 있도록 했다.




Plan_5F
각 층의 전면에 자리한 4세대를 3, 5베이로 거실과 침실이 모두 남향을 바라보며, 아파트의 장점을 반영한 평면을 계획해 임대가 잘 될 수 있게 했다. 후면의 2세대는 대지의 장방형 비례 상 북쪽에 있지만, 충분한 채광과 조망을 가질 수 있도록 남서측 방향을 주향으로 계획했고, 후면 테라스 쪽으로 전면 창을 만들었다. 1세대는 2m에 가까운 넓은 테라스가 있는 단층 스튜디오 타입이고, 다른 1세대는 복층형으로 거실과 침실을 층으로 분리하여 좀 더 재밌게 공간을 쓸 수 있도록 했다. 각 층에 테라스를 두어 앞으로 입주할 사람의 취향에 따라 활용할 수 있도록 계획했다.




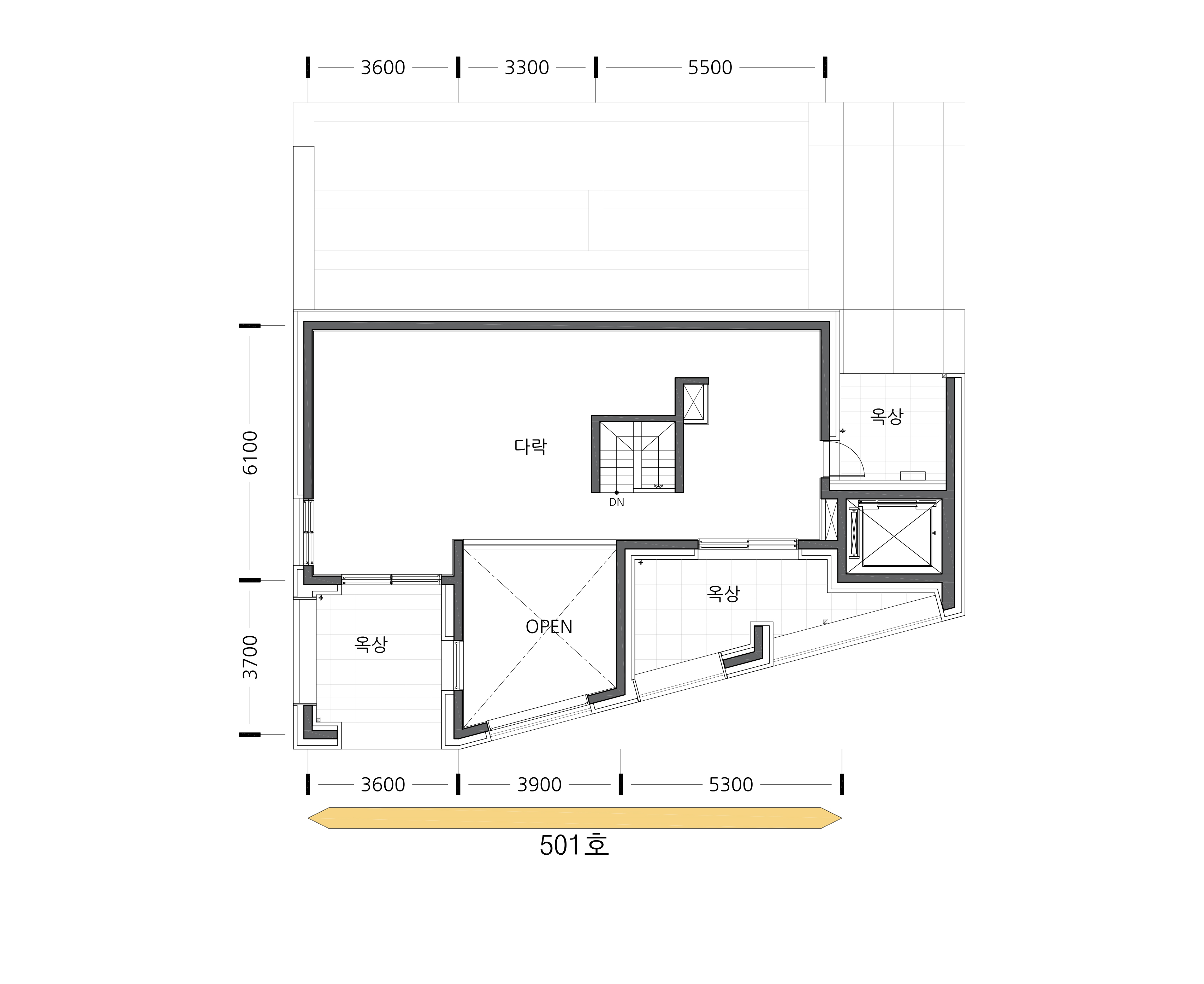
Plan_Attic
좋은 건축은 주변과 어우러져야 한다고 생각하여 적벽돌과 석재로 이뤄진 주변 집들의 재료와 형태에서 디자인을 시작했다. 기존 집인 빨간 벽돌집과 돌담, 대청에 앉아 할머니와 얘기하던 공간, 처마 공간의 기억이 디자인의 모티브가 되었고, 집의 상징이 되었다. 빨간 벽돌과 돌담의 질감을 의미하는 회색 스터코를 주재료로 사용했고, 5층 세대는 벽돌로 둘러싸인 처마 공간의 느낌을 살려 테라스를 구성했다. 거실에서 하늘을 볼 수 있게 한 아치형 통창은 대청에 누워 할머니와 별을 보던 기억을 상기한다.



















