
Urban Regeneration Accelerator
도시는 폐허화에 의해 버려지고 오염된 것들을 다시 새롭게 변화시키는 도시재생(Urban Regeneration)의 개념이 요구된다. 현재의 도시재생의 개념은 신도시개발과 신시가지 개발의 전략으로 많이 사용되었다. 쇠퇴하는 기존의 도시에 새로운 프로그램과 물리적 건축 환경을 제공하여, 도시 환경, 산업, 경제, 문화...등의 재활성과 부흥을 만들어 나가는 것을 의미한다. 단순히 건축에 의해서 도달되는 미적인 조작보다는 새로운 환경의 변환을 유도하는 새로운 순환체계를 구성함을 요구한다. 도시민들의 삶의 질을 높이기 위한 거버넌스적 개념의 커뮤니티와 문화적 장치를 구성하는 방향으로 발전되었다.


Scheme

Mass Diagram
성동문화 복지센터는 단순히 관공서를 만든다는 개념이 아니고 열악한 도시환경에 새롭게 등장하는 문화복지시설의 역할을 담당하는 거버넌스의 개념을 수행한다는 점이 중요한 이슈가 된다. 성수동 공장지대에 가장 열악한 중심에 복지센터를 구성하고, 이 문화복지센터는 도시를 바꾸는 해드쿼터와 같은 역할을 수행한다. 관공서의 기능이 행정위주의 역할이라면 거버넌스의 개념의 건축은 도시와 사회를 바꾸는 역할자로서의 씨앗과 같다. 성동문화복지센터도 공장지대의 주민들의 삶을 도와주고 재정비해주는 역할을 수행한다. 건축을 통해서 도시와 사회를 바꿀수 잇다는 전제에서 출발한다는 점이 흥미로우며, 빌바오 구겐하임, 그라츠 쿤스트하우스, 런던의 테이트모던, 라반센터, 알솜의 그리니치지역 도서관등이 그 예라 할 수 있다. 빈민지역에 씨앗처럼 뿌려져 주변사회를 바꾸는 성공적인 건축장치로 작용하였다.



Program Diagram
공공광장으로서의 건축_Public Space as Public Plaza
폐쇄적이고 거리감을 만들어 내었던 관공서의 개념을 탈피한 건축을 제안한다. 문화를 수용하는 다양한 요소, 재미, 감동의 프로그램을 계획하여 변화하는 열려진 입체광장으로서의 문화복지센터를 제안한다. 변화하는 시민들의 문화와 복지를 동시에 수용하는 열려진 건축의 장이 된다. 시민이 즐겨 찾고, 복지에 대한 혜택을 입을 수 있는 메인공간이며 친숙한 공간으로서의 열려진 공공의 건축을 구성한다. 복지적, 문화적, 정보적 이벤트를 만들어내는 시민활동의 중심지를 제안한다.

Circulation

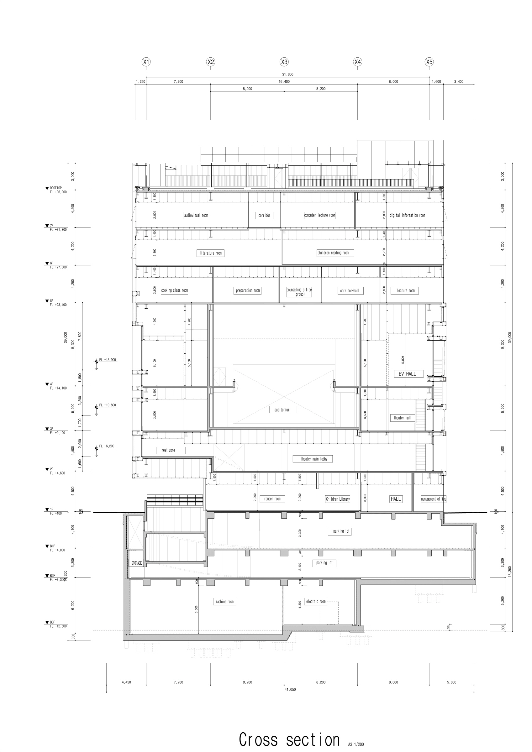
Section
도시구조와 환경의 집약으로서의 건축_Public Space as City Structure & Green Structure
수평적 거리와 광장을 적극 수용하여 건물내부에서 수직적, 수평적, 3차원적 광장을 제공하는 도시구조를 집약하는 건축을 제안한다. 다양한 요소, 재미, 감동등의 프로그램제안하여 살아있는 복지문화센터를 만든다. 움직이는 동선 장치들, 무브먼트 컨텐츠, 문화 컨텐츠는 새로운 시민의 감각을 적극수용하며 항상 실험적이며 미래적인 변화를 만들어갈 것을 제안한다. 도시구조 속에는 건물이 만들어내는 구조뿐만 아니라 도시에 필요한 친환경적인 요소들이 함께 포함되어 정서적 안정과 풍요로움을 함께 달성해내는 장치로 작용한다. ■

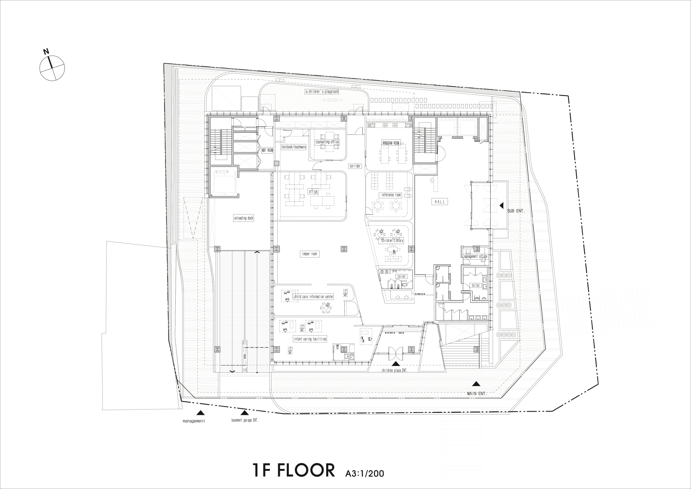
Plan_1F

Plan_3F