




Site Plan

Elevation
바다가 보이는 한적한 곳에 부부는 모두를 위한 집을 짓기로 했다. 누구나 일상을 잊고 휴식을 취할 수 있는 스테이 같은 공간을 원했다. 원하는 방향이 명확했기에 요구하는 프로그램은 넓은 거실과 최소한의 주방, 침실 등 단순했다. 마당을 공유하는 바로 옆 주택에는 현재 건축주 부부가 생활하고 있었다. 건축주 부부의 집은 다양한 입면 요소로 조금은 복잡한 모습을 하고 있었기에 새롭게 들어설 주택은 어떤 건물보다 단순하고 선이 굵기를 바랐다. 그 결과 수평선을 강조하는 매스로 구성을 했다.





Section

Section
건축주 부부의 집과 공유하는 마당을 선택할 수 있게 하면서, 시선의 간섭을 없애기 위해 거실 앞 버퍼 공간을 만드는 장치로 가벽을 계획했다. 이 가벽은 외벽의 시선을 차단하는 동시에 빛을 끌어들이고, 실내에서 바라볼 때면 수목의 배경이 된다. 바닷가 근처의 대지기에 고민해야 하는 부분은 염분이었다. 건물의 외장재는 선정한 세라믹 타일은 다른 일반적인 외장재에 비해 염분에 강한고, 각종 오염으로부터 자유로울 수 있다는 점이 크게 작용했다.






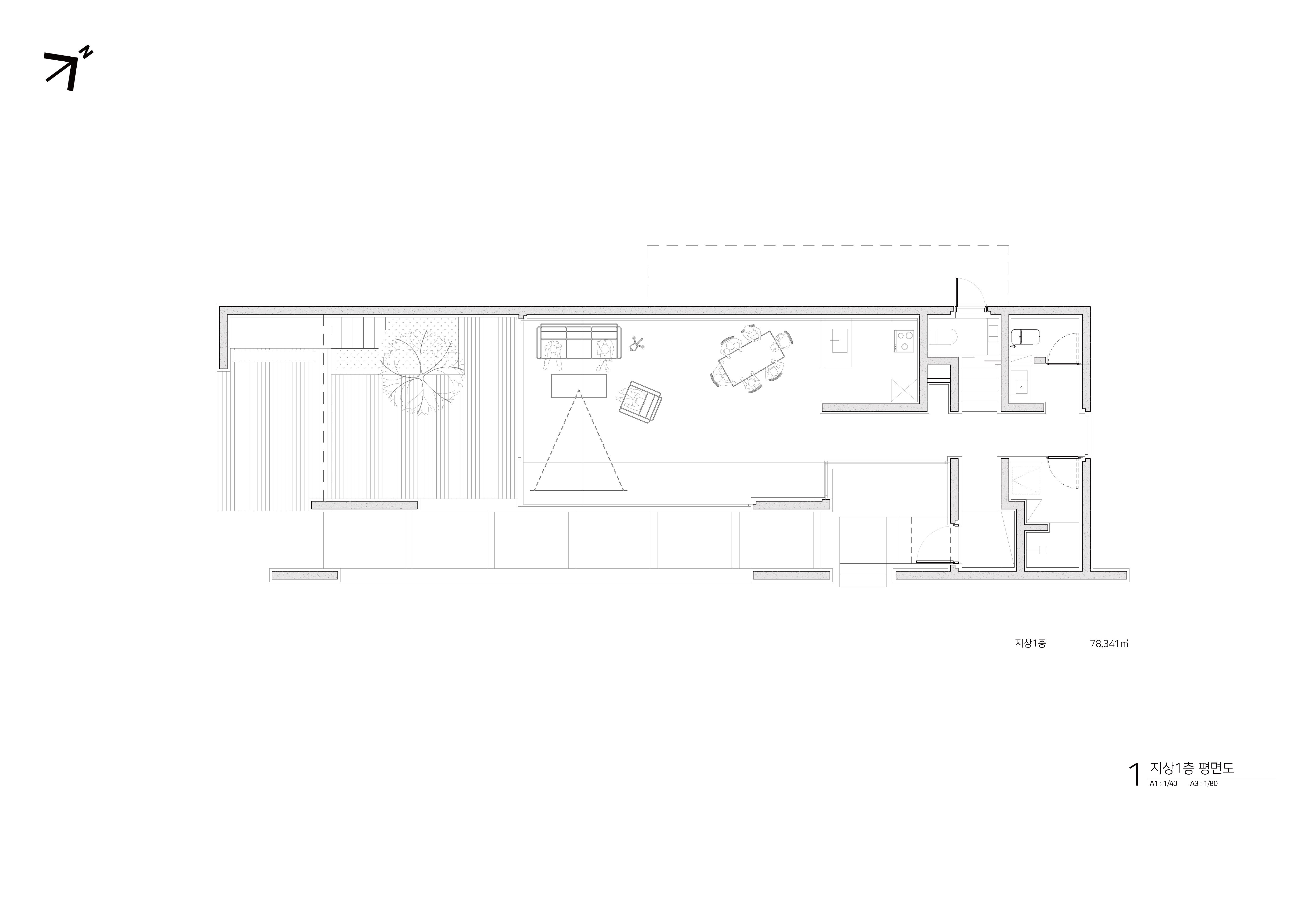
Plan_1F
건축물이 지표면에서 살짝 떠있는 모습을 주고 싶었다. 이곳을 찾는 이들이 낯섦에 기분 좋은 호기심을 가지고 진입하기를 원했고, 건축주가 바랐던 '일상을 잊는다.'는 하나의 상징적인 형태가 될 수 있을 것이라 생각했다. 가벽과 건축물 사이 공간의 조경을 바라보며 1층 진입이 이뤄진다. 지상 1층에는 거실과 주방, 화장실 그리고 거실과 연결된 외부 공간을 계획했다. 거실은 앞바다 쪽으로 시선이 화장되고, 외부 데크로 나갈 수 있는 창과 가벽을 배경 삼아 가까운 조경 공간을 누리고, 그 너머 개구부를 두어 시선이 하늘을 향하는 창으로 공간감을 주고자 했다.





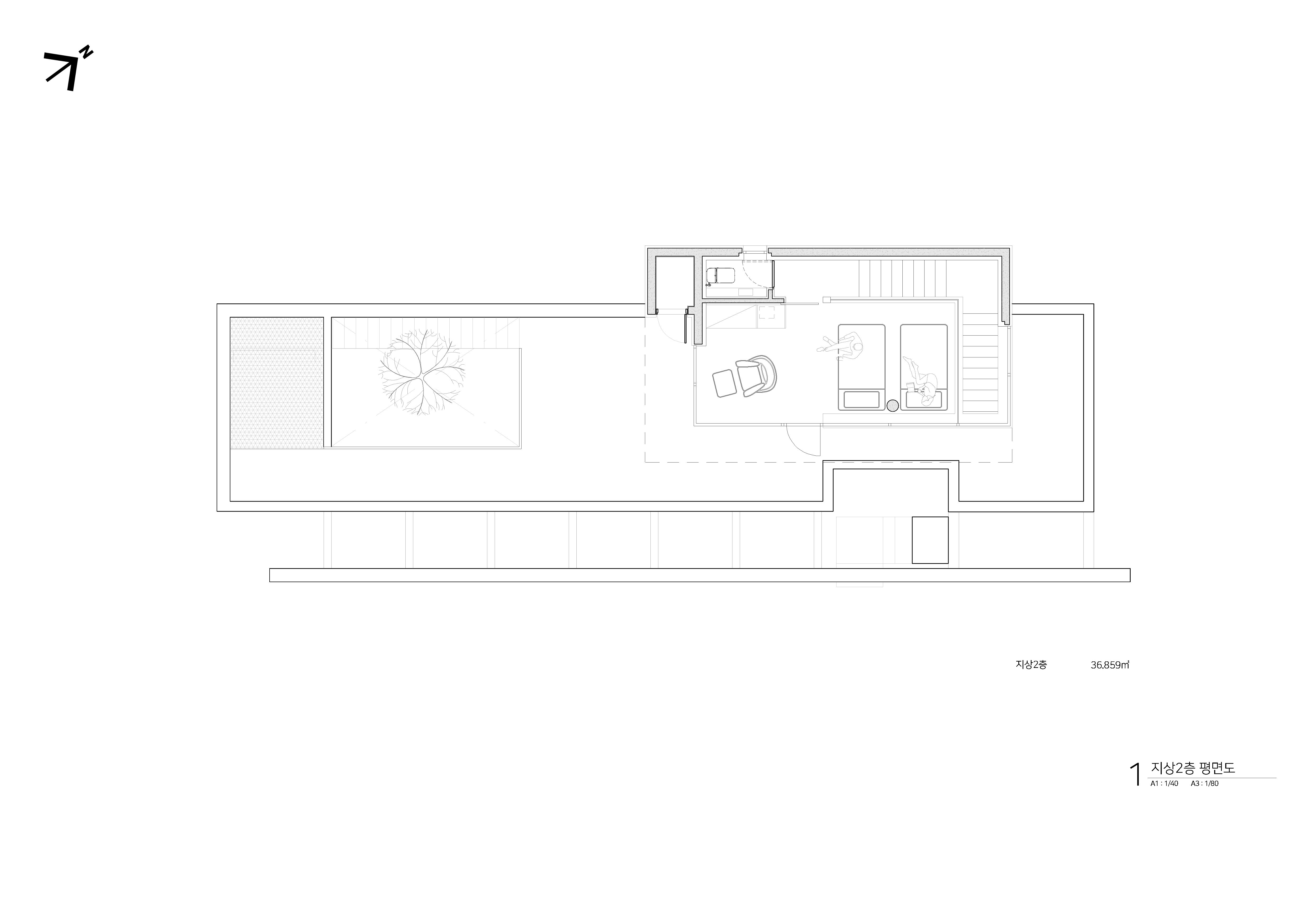
Plan_2F
지상 2층으로 올라가면 바다와 주변을 한눈에 바로 볼 수 있는 파노라마와 같은 풍경을 만들고자 벽량을 최소화했고, 콘크리트 원형 기둥으로 지붕 슬래브를 지지했다. 외부 공간은 지상 1층과 마찬가지로 바다 쪽을 향하도록 열어두었다. 대부도 단독주택은 부부를 위하는 동시에 그들과 연결된 가족, 지인, 회사 직원들이 편하게 휴식을 취하고자 만들어진 곳이다. 이런 마음으로 시작된 프로젝트는 부부의 마음을 이해하듯 많은 이들이 부담 없이 찾아와 잠시나마 일상을 잊고 휴식을 취할 수 있는 공간이 되었다.




















