




상업 공간의 맥락화
상업 공간의 특징 중 하나는 균질한 공간이다. ‘균질 공간’은 소위 개발자들의 사업적 수치에 맞춰 상품화된 자본주의 공간 원리이다. 이런 공간은 지역적, 장소적, 도시적, 환경적 상황과 관계없이 반복되고 확장될 수 있는 좌표적 공간이다. 이러한 ‘균질 공간’은 우리의 도시 속에서 이미 아파트나 업무용 빌딩 등 표준화된 건물로 소비되고 있다.





Diagram

Diagram

Elevation
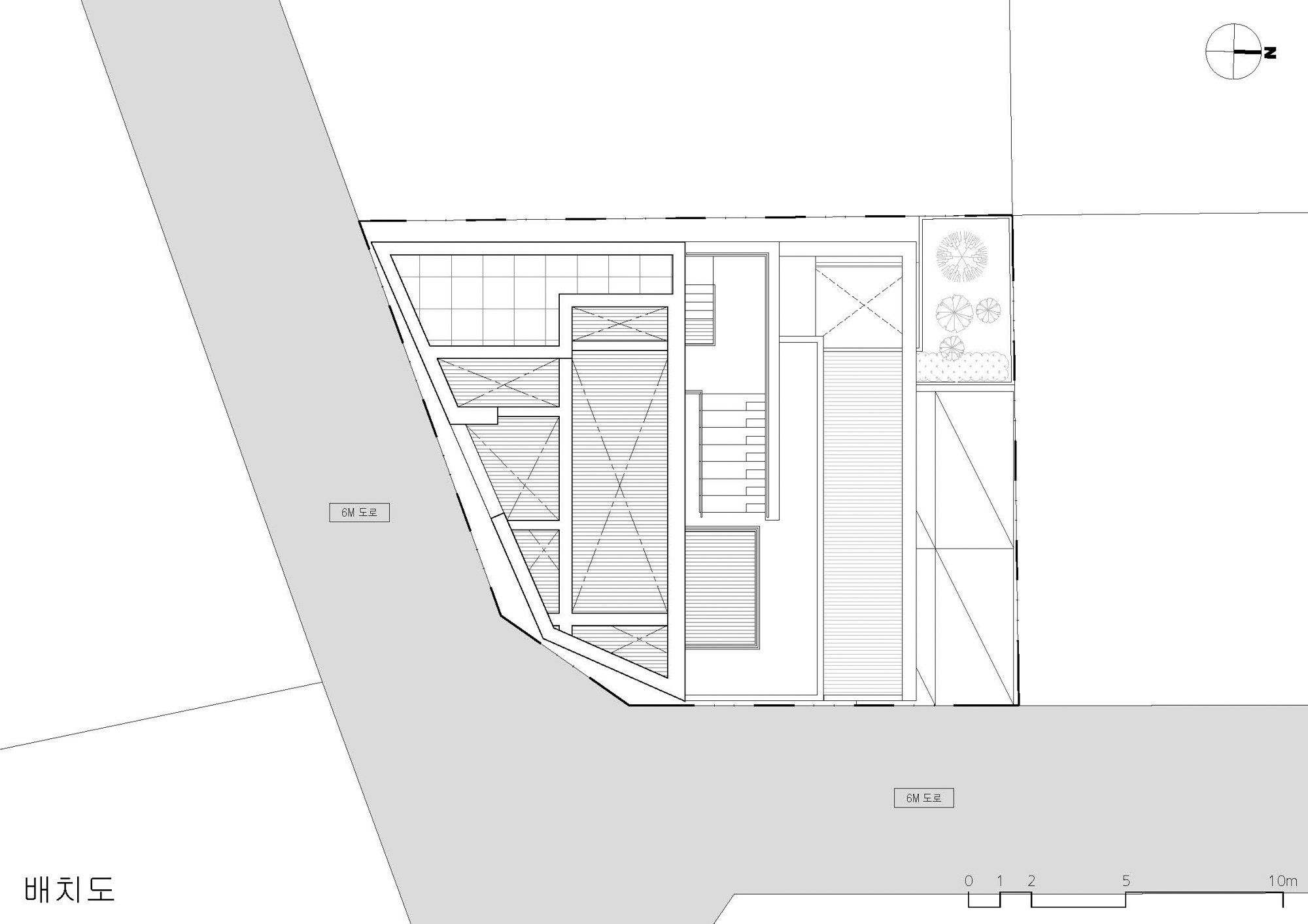
이에 반해 '스케이프 논현 7723'은 땅의 도시적 맥락을 해석하면서 계획되었다. 코너의 선형은 벽돌의 닫힌 외피로 형태의 윤곽을 잡으면서, 1층과 3층을 투명한 사각형의 매스로 깎아 내어 긴장감 있는 입면의 맥락적 형태를 만든다. 동쪽은 길 건너 필지의 개방된 옥외 주차장이기에 내부 공간의 시선 확장의 방향을 동쪽으로 선택했다.





Site Plan

Section
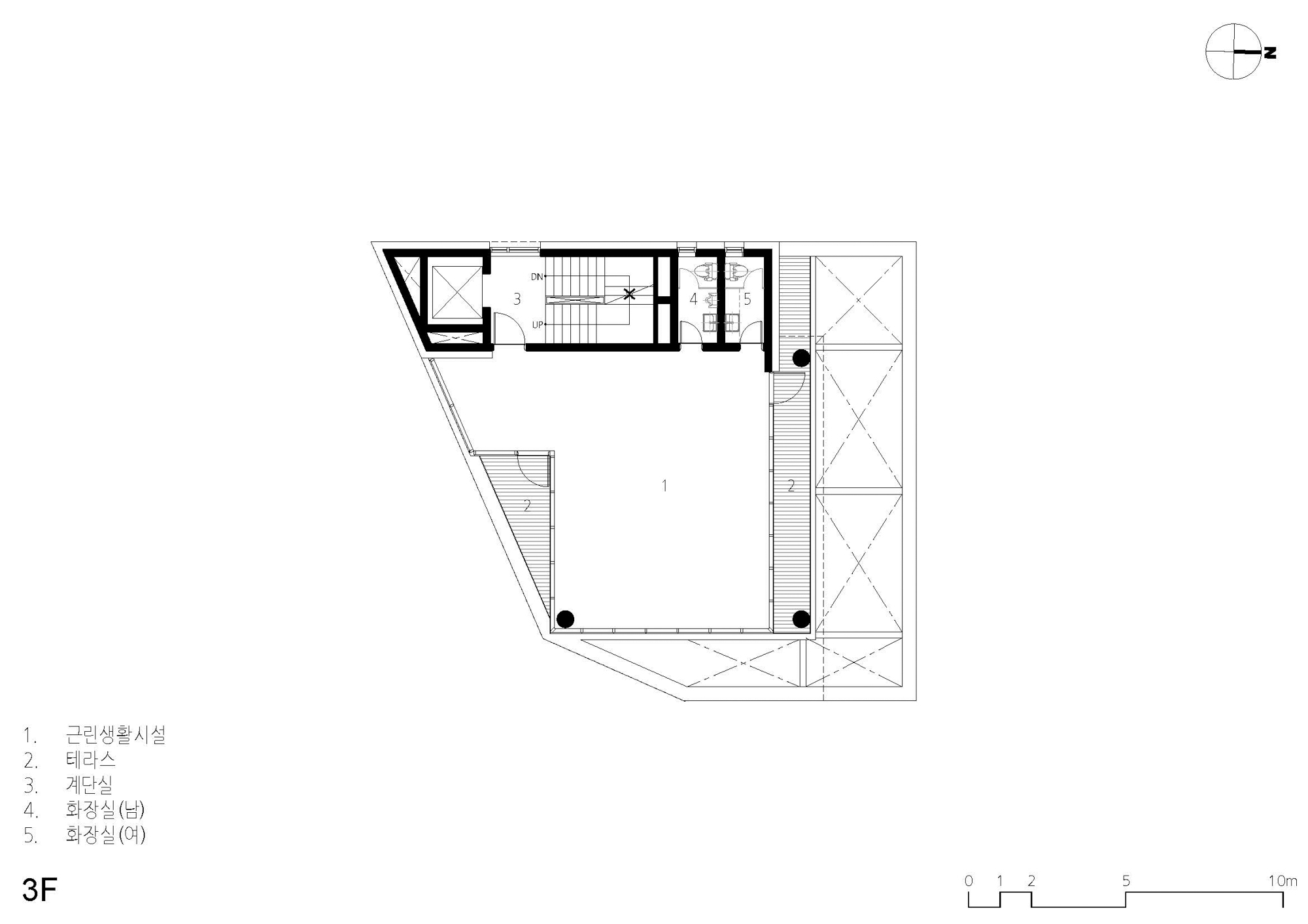
2층과 4층의 테라스와 3층의 유리박스는 동쪽으로 주 시선을 확장한다. 옥상은 북쪽으로 한강 건너 북한산까지 조망할 수 있는 높이를 가지고 있어 전망대를 계획했다. 여기에 4층 테라스, 휴식 계단과 옥상 엘리베이터 연결을 더해 옥상은 건물 사용자들의 일상 속 휴식 공간이 된다. 이 같은 제안으로 '스케이프 논현 7723'은 상업적 균질 공간이 아닌 맥락적 일상 장소로 소비될 것이다.




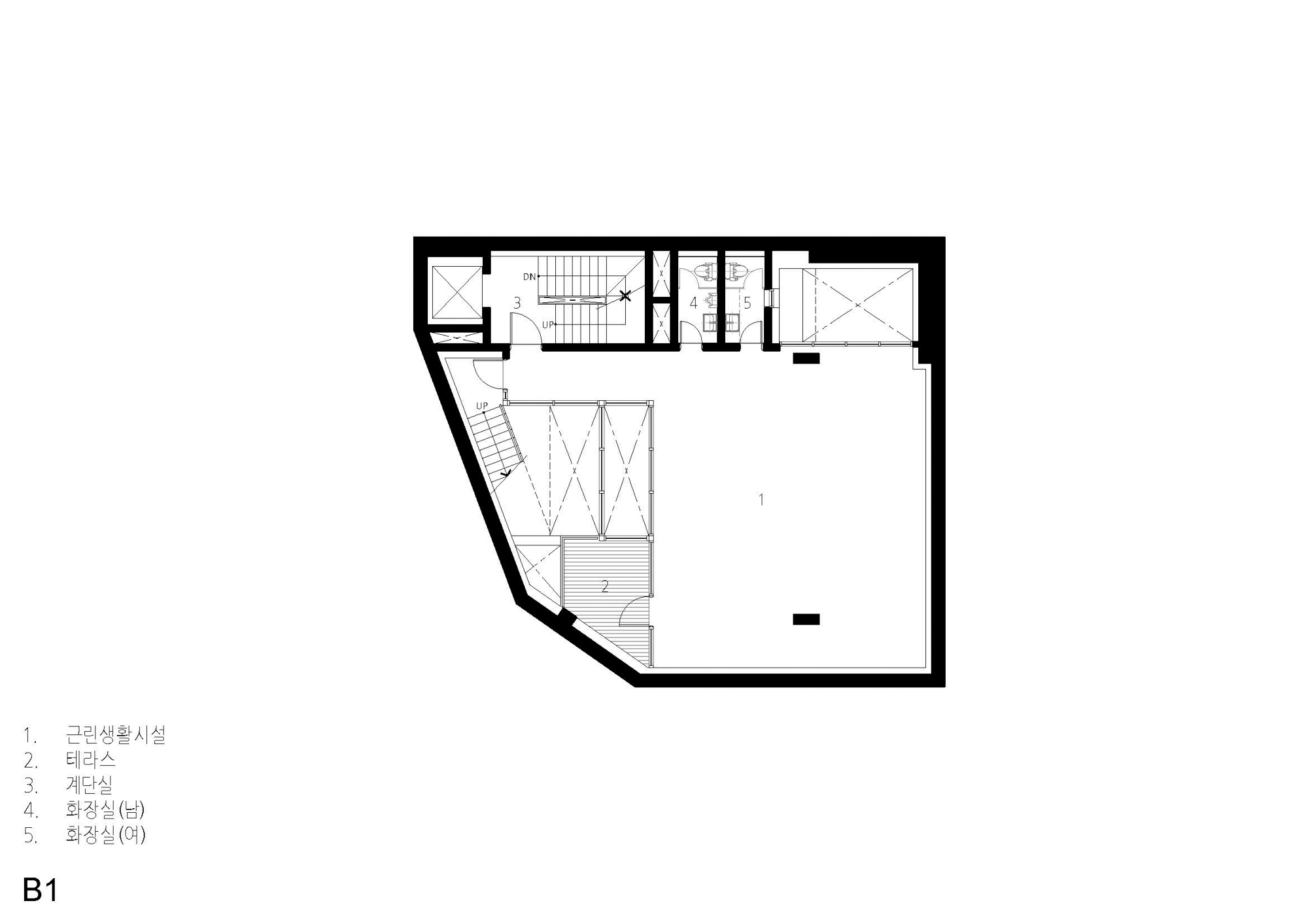
Plan_B2
법규 제약의 건축화
필지는 건폐율 60%에 용적률 150%의 제1종 일반주거지역의 땅이다. 건폐율은 필지를 기준으로 건물을 채울 수 있는 기준이고, 용적률은 층수를 올려 내부로 사용할 수 있는 면적 기준이다. 북측 일조사선은 4층부터 바닥 면적이 줄어든다. 한 평이라도 더 채우고 사용할 수 있는 면적을 확보하기 위한 자본의 욕망은 면적과 같다. 더 채우고 싶지만 못하게 하니 법규는 제약이다.





Plan_B1
건축을 진행하며 법규 제약의 자본주의적 욕망마저 또 다른 질서를 위한 규율로 길들이려 했다. 건폐율은 필지에 채우고 남는 40%의 잠재성을 찾는 규율로 바뀐다. 용적률은 면적은 채우되 남을 수 있는 잉여의 면적을 건축적 활용을 하는 규율로 바꿨다. 일조사선은 지키되 주어진 환경과 관계 조직하는 형태 구현이나 내부 공간이 확장되는 외부 공간을 만드는 규율로 변하였다. 이제 법규적 제약은 도시 속에서 긍정적으로 구현되는 건축적 잠재의 가능성으로 인식될 것이다.



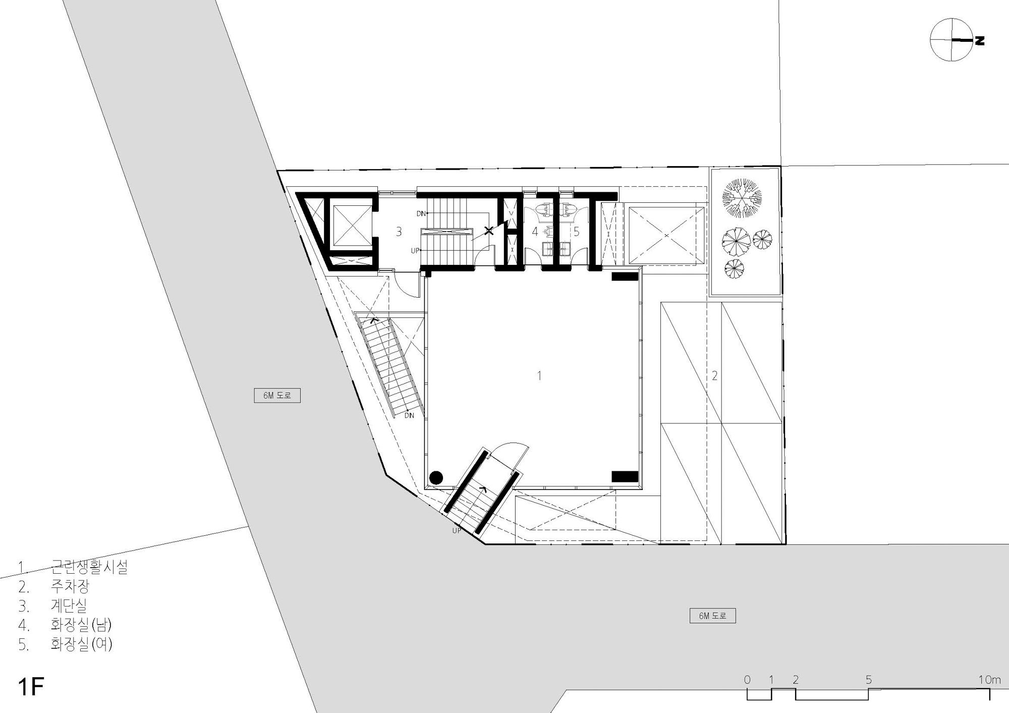
Plan_1F






Plan_2F
도시 경계의 관계화
오늘날 건축은 도시와 격리되어 있다. 주변 환경에 무심하게 서 있는 수많은 상자 모양의 건물은 일종의 격리시설이다. 사유화하고 싶은 자본의 욕망은 필지의 경계선을 따라 얇은 표피의 파사드를 만드는 것에 익숙하다. 1층의 바닥도 한 치의 면적 양보 없이 지상층과 지하층으로 반복되어 나뉜다. 도시 경계는 더욱 얇아지고 민감하게 투명하지만 서로 배려 없는 격리에 가깝다.





Plan_3F
여기서 1층과 지하층에 대한 도시와의 관계적 언어를 찾고자 한다. 필지의 경계선에서 물러 들어가 1층의 사각형 파사드 면을 배치하고, 그 사이의 두께를 활용하는 전략이다. 그 두께는 지하로 이어지는 선큰과 계단, 띄워진 1층으로 올라가는 붉은 게이트, 사선 유리벽으로 세워진 주차장 벽, 수직 보이드로 2층과 3층까지 뚫린 사이 공간으로 이어진다. 얇은 표피는 두꺼운 표층으로 인식되고, 도시 가로변의 관계는 지하와 지상까지 확장된다. 결국, 경계는 격리가 아닌 관계로 작동되어 소비될 것이다.■



Plan_4F

Plan_Roof




















