





Section
여유로움과 부드러움이 머무는 집
귀여운 유치원생 아들과 함께 한 부부가 찾아왔다. 아이를 갖기 전 주로 데이트하던 양평에 반대로 서울로 이사한 후 주택 생활을 하던 중 소중한 아들이 태어났다. 아이를 키우면서 친구들을 사귀고 육아 정보를 나누다 보니 아이들을 함께 돌보는 비슷한 관심사를 공유하는 사람들이 직접 만든 주택 단지와 연이 닿았다. 첫 주택 생활의 아쉬웠던 점들을 보완하고 곧 초등학생이 되는 아들과 부부의 삶의 방식에 맞는 집을 원했다. 부부는 무엇보다 답답하지 않고 건강한 합리적인 집을 짓고자 했다.





Plan_1F
대지는 용문산과 남한강 사이에 자리하여 남 측으로 경사가 흐르는 주택 단지의 가운데에 자리 잡고 있었고 집터에서 남쪽으로 마을의 풍경을 볼 수 있었다. 주택 단지는 세심하게 기획된 마스터 플랜에 의한 결과물이었다. 마을의 모든 이웃집이 같은 외장 마감재를 사용하여 일관된 톤 앤 매너를 만들고 있기에 집의 외향에 집중하기보다 내부의 공간 구성과 필요한 기능 고려에 충실하게 설계했다. 공간의 합리적 디자인이 형태에도 자연히 영향을 주어 결과적으로는 마을의 풍경에 약간의 유연한 표정을 더할 수 있는 집이 되길 기대했다.




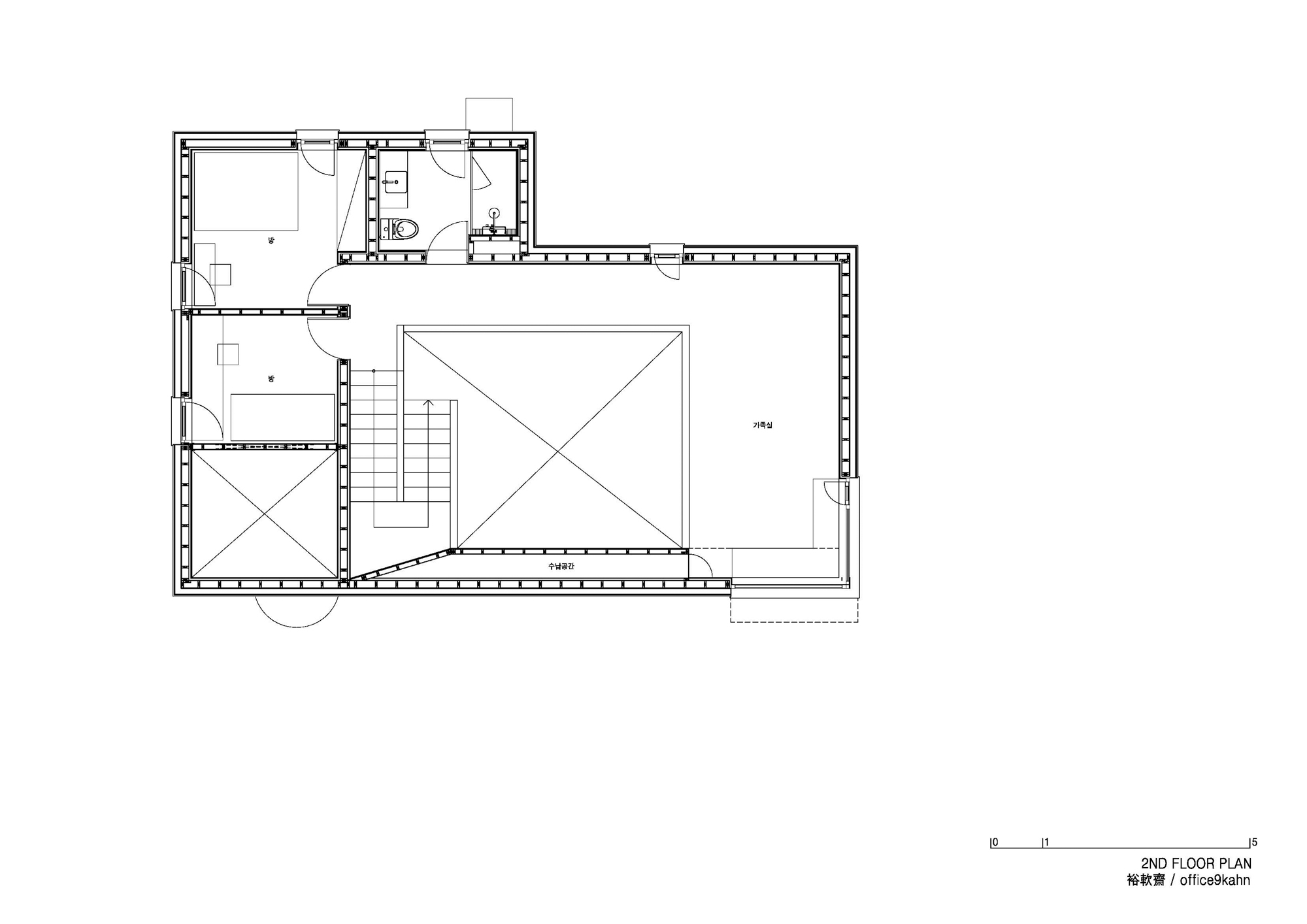
유연재의 1층은 가족의 삶의 방식을 고려해 식탁을 중심으로 구성됐다. 식탁은 넓은 창을 통해 남측 마당으로 열려 있다. 식탁 뒤로 아일랜드 주방이 배치되어 있고 조리 공간은 안쪽에 숨어 있다. 식탁 공간은 여유롭고 개방적인 볼륨을 갖도록 2층에서 오프닝을 유지했기에 집 전체와 소통할 수 있다. 깔끔하면서도 아늑한 느낌을 주도록 아일랜드와 벽면 일부를 오크 톤으로 마감하였다. 아이 방 역시 1층의 남측 영역에 배치하여 마당과 채광을 잘 누릴 수 있고 자작나무 평상과 벙커 스페이스를 만들어 기억에 오래 남는 장소가 되길 바랐다. 2층은 마을 풍경을 즐길 수 있는 남측에 가족실을 두고 부부의 침실은 사생활 보호와 숙면을 고려하여 각각 안쪽에 두었다.





Plan_2F
유연재의 지붕은 과하지 않은 볼륨을 유지하기 위해 상자의 한쪽을 눌러 만들어진 유형에서 착안하였다. 두 방향의 경사 지붕이 만나고 지붕골도 경사져 내려온다. 경사진 지붕골은 매입 물받이를 설치하여 빗물을 유도하도록 설계하였다. 지붕 통기층 각재 위에 추가 각재를 엇갈리게 배치해서 원활한 통기와 물받이의 깊이를 확보했다. 물받이의 끝은 외벽에서 돌출시켜 유수량이 많더라도 건물의 외벽에 간섭하지 않는다. 남쪽 마당에 놓인 툇마루 공간은 비를 맞지 않고 즐길 수 있도록 여유 공간이 있고, 현관문 앞 우산을 접고 문을 여는 작은 공간도 들어와 있다. 남측 창에 설치된 알루미늄 차양은 한여름 일사량을 조절하기 위한 건축 장치인데 아이 방과 가족실의 존재를 드러내는 디자인 요소이기도 하다.



유연재는 패시브 주택 인증 과정에 포함된 설계 컨설팅을 받으며 딱 필요한 만큼의 성능을 구현하도록 패시브 건축 요소를 검토하고 투자하였다. 협회에 인증받은 패시브 주택 전문 시공사는 설계 시 검토된 자재를 정해진 시공 방식에 따라 작업하였다. 지난 2월 착공한 유연재는 8월에 무사히 공사를 마치고 이 주택단지의 첫 번째 패시브 인증 주택이 되었다. 이름처럼 좋은 이웃과 함께 오랫동안 여유로움과 부드러움이 늘 머무는 집이 되길 바라본다.■



















