
시공사



속세를 등진 별세계
답답하고 긴장된 사회와 지루하게 연속되는 획일화 된 도시 풍경을 등지고, 속세의 경계를 따라 흐르는 실개천 위를 가로지르는 새로운 세계로의 관문인 'STELLA BRIDGE'가 있다. 이 다리를 건너면 19개의 '삶의 별'이 서식하는 별들의 세계가 펼쳐진다.




별들의 착륙
남향의 태양 빛을 최대한 실내로 끌어들이고, 주변 풍경을 적극 끌어들여 실내에서의 회화적인 풍경을 연출하기 위해 다양한 각도의 지붕과 고창을 각 세대마다 다른 방향으로 배치하였다. 또한, 각자 다른 지붕과 창들은 실내에 자연 통풍을 원활하게 한다. 인접 세대의 시선을 상호 차단하기 위한 경사날개벽을 더했고, 가파른 경사 지형을 따라 스킵플로어 형식으로 배치하였다. 지그재그식 동선은 역동적인 내외부 공간 구조를 만들어내고 결과적으로 별을 닮은 건축적 '별'을 만들었다.





Elevation

Elevation
축제적 달동네
달동네 골목길의 정적인 공간성: 각 세대의 매스와 매스의 정적이며 경사진 사이 공간은 유람성의 산책적 공간성을 잠재하고 있다. 두 매스의 사이 공간은 스스로 액자처럼 건너편 풍경을 회화적으로 연출하면서 '달동네'가 가진 고유한 공간성을 만든다.
축제적 광장의 역동적인 공간성: 단지 내의 주도로는 기능적인 이동통행로인 동시에, 도로에 면한 모든 세대의 외부생활이 서로 만나며 상호교차하는 사회적, 문화적 행위가 발생하는 장소가 될 수 있다. 이 도로 광장이 거주자의 친교를 도모하는 공동 생활공간으로 축제적 광장의 역할이 되길 기대한다.




Section

Section

Section
작지만 풍요로운 공간
경사진 지형의 언덕을 따라 스킵플로어 형식으로 분절된 내외부 공간에 변화로운 배치를 적용했다. 내외부 공간의 실제 규모는 작지만, 풍성하고 흥미로운 공간적 유람성을 체감할 수 있다.





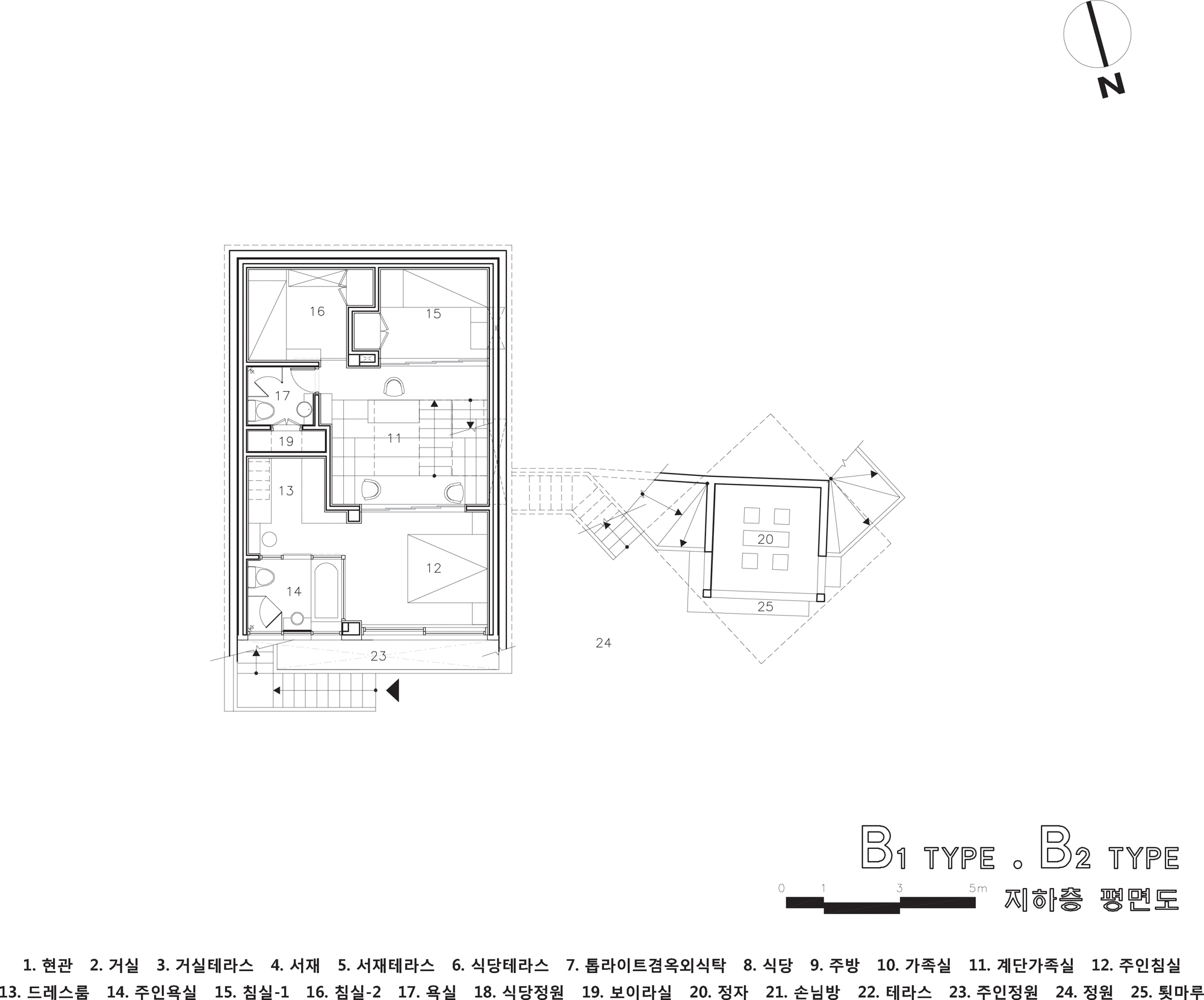
Plan_B1

Plan_1F
소유본능의 충족을 위한 정체성
세 가지의 유닛 플랜과 네 가지의 조형, 여러 가지 색상으로 변화하는 알루미늄 외벽 등, 다양한 19개 세대 모두에 각각 서로 다른 정체성을 부여하였다.





Plan_B1

Plan_1F
집 장사의 진화
스텔라 피오레 STELLA FIORE의 시행사는, 앞으로 국내에서 부동산이 아닌, 문화를 판매하는 형태로 진화된 집 장사의 효시가 될 것 같다.





Plan_B1

Plan_1F
별 속에서 별을 보며
이제 집은 단지 거주하기 위한 기계가 아니라 삶을 즐길 수 있는 일상적인 오락의 장소가 되어야 할 것이다.■



















