




Diagram
이 주택은 일반적인 전원주택단지와 차별화를 두겠다는 의지로 오랜 지인들이 의기투합하여 모인 마을에 자리하고 있다. 이곳은 마을 구성원들이 자체 규약을 두어 건축물의 높이를 비롯한 창의 면적과 위치, 입면 재료, 담장의 높이와 구성, 조경 및 녹지면적에 대해 내부 심사를 통과해야만 건축을 할 수 있는 매우 까다로운 조건이 있었다. 특히 우리의 계획 대지는 먼 남쪽으로부터 이어진 계룡산의 산세와 복잡한 능선이 교차하는 곳에 있어 그 흐름을 존치하고자 건축물의 높이에 대한 제약이 꽤 심했다. 계획은 이렇듯 많은 제약 조건을 바탕으로 어떻게 활용할 지에 대한 고민으로부터 시작되었다.




Elevation

Elevation
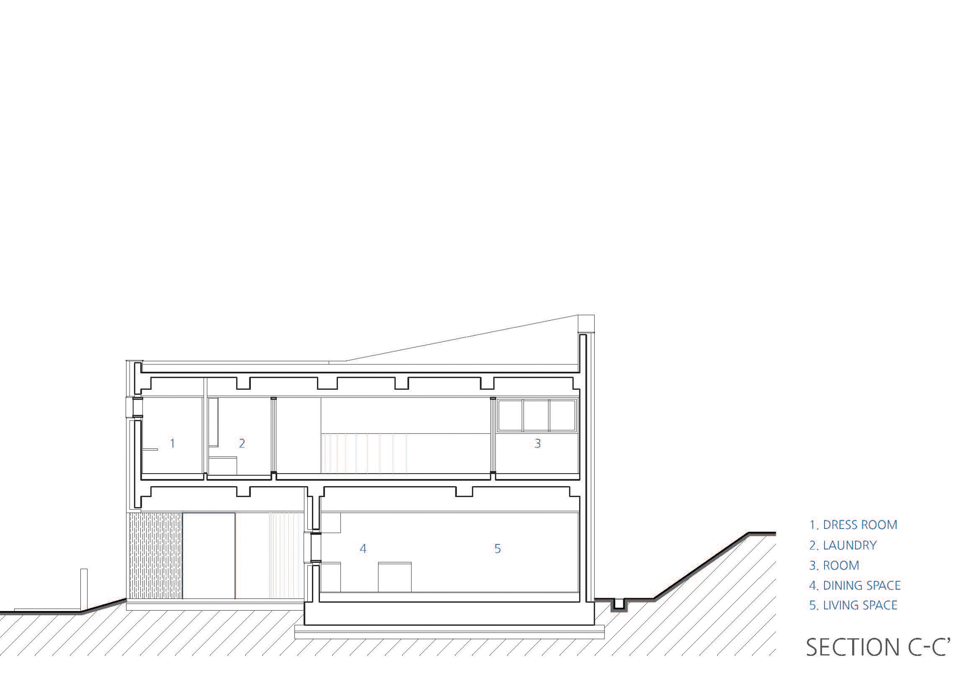
땅의 형상이 남측 방향의 쐐기형이었기 때문에 자연스럽게 넓은 공간을 쓸 수 있는 북측으로 건축물 배치를 해야만 했는데, 북측 대지의 3.6m 옹벽이 자리하고 있는 관계로 자연스럽게 1층의 북측은 채광 환경이 그리 좋지 않았다. 이러한 이유로 주택에서 채광이 상대적으로 불리해도 괜찮은 주차장과 주방 및 다용도실이 먼저 배치되었다.




Section

Section
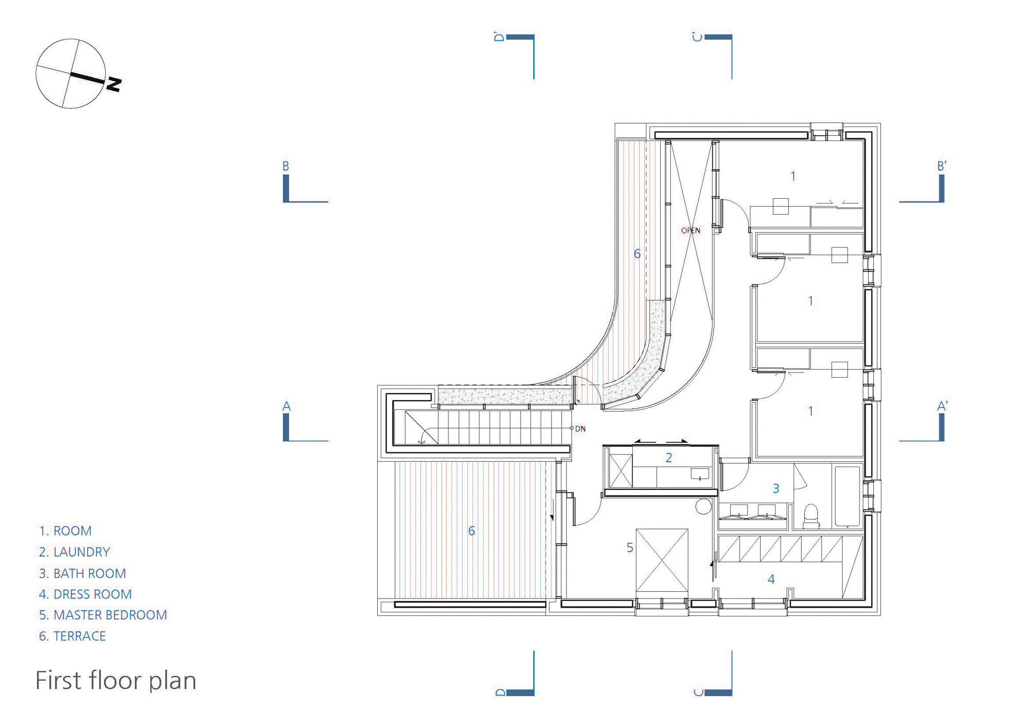
동쪽은 이 마을의 주 도로로 사용되는 관계로 프라이버시 방해에 대한 부담이 컸다. 다행히 서쪽은 능선이 살짝 솟아올라 왔다가 급경사로 이어져 있어 특별한 방해 없이 조망이 가능했기에 동쪽의 도로 쪽을 등진 'ㄱ'자 형태로 건축물을 배치, 반대편 능선과 연계하여 오목한 공간을 만들었다. 이는 'ㄷ'자 전통가옥처럼 작은 마당을 둘 수 있게 되어, 그 마당에 연계되는 거실을 연이어 배치할 수 있었다.




Section

Section
3베이의 판상형 아파트 생활을 오래 했던 건축주는 그러한 생활이 너무나 익숙하였으므로 거실을 비롯하여 모든 방이 채광 좋은 남측을 바라보길 희망했다. 하지만 마을 진입로로부터 직접 개인 공간이 노출되길 원하지 않았으므로 보이드 공간과 외부데크를 이용하여 심리적으로도 부담을 줄이려 했다.





Plan_1F
가족의 단합과 화합을 중요하게 생각했던 건축주는 그들 시간 대부분을 1층 거실에서 함께 보내길 희망했다. 그러한 이유로 현관에 들어서자마자 자연스럽게 거실로 시선을 유도했다. 그 역할에는 보이드 공간과 곡선을 활용했다. 계단실을 구석에 배치한 것은 상대적으로 사적 공간인 2층으로의 이동을 어렵게 하기 위해서였다. 2층 복도에서 반대편 방까지 가는 길이 길어짐으로 느낄 지루함은 창 너머의 파노라믹 뷰를 바라보며 상쇄된다. 이는 수평적인 시선뿐만 아니라 수직적으로도 다양한 시점에서 공간을 다채롭게 느끼게 하고, 각 공간에서 소통할 수 있게 한다.



Plan_2F
이렇듯 작은 주택임에도 이처럼 많은 콘텍스트들이 중첩되고 교차하며 이루어지는 다양한 레이어와 그것에 대응되는 흐름은 가상의 벽들을 만들어 낸다. 이 벽은 프라이버시 보호를 위해서나 태양광 집열판 등 각종 설비 기기와 같이 무언가를 감추기 위한 장벽이 된다. 동시에 강한 태양 빛이나 실외기에 대비하여 적절한 수용과 거리 두기를 위한 다공성 필터가 되기도 한다. 미적으로는 수직적 보이드와 수평적 동선 등 어느 방향성에 맞추기 위해 공중에 떠 있는 가벼운 벽이 된다. 파도처럼 넘실거리며 이어져 오는 산세의 능선에 자연스럽게 조화되기 위한 장식적 요소로서 입면의 흐름을 따르는 벽도 있다.
위와 같은 벽을 '분위기 있는 벽_ Atmospheric Wall'이라 부르고자 한다. Atmospheric Wall은 무심코 그린 건축가의 선이 단순히 구축된 것이 아니라 원인과 이유가 있는 반응이 실제화된 것이다. 또한, 각종 제약 조건에 대응하며 자연스럽게 적응, 변형된 일상의 예술이다. 이렇듯 힘의 조율이 만들어낸 벽으로 자연스러운 분위기로 흐르는 이 공간에 클라이언트가 가족들과 편안한 일생을 보내길 빈다.■


















