




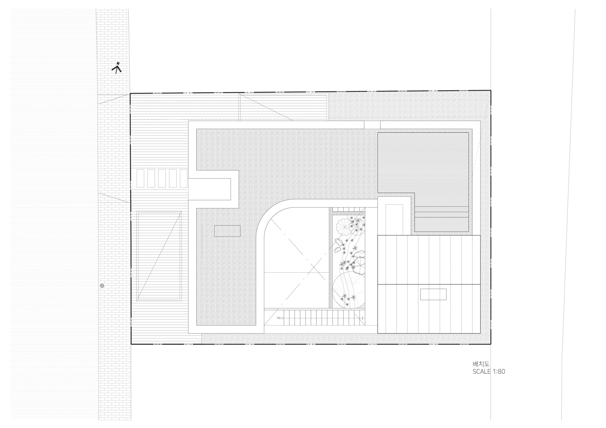
Site Plan
내밀함과 함께하기의 경계에서
두 아들과 부부, 네 가족이 온전한 안식처를 만들기 위해 집이 시작되었다. 부부는 의사로, 업무 시간에는 환자들의 아픔을 공감하고 치유하기 위해 정신없이 바쁜 일과를 보낸다. 늦은 퇴근 후 집에서는 가족에게 집중하고 편안함과 쉼을 얻을 수 있는 일상을 누리길 꿈꿨고, 주변 시선으로부터 일상이 지켜지는 가족만의 공간을 원했다.




Elevation
건물이 들어서는 대지는 지구 단위 계획 구역에 있다. 해당 구역은 도시 및 지역의 효율적인 개발과 관리를 위해 제정된 지침이 있다. 그러나 이 지침은 더 나은 주거 공간과 건축 공간을 위한다는 대의를 위해, 개인의 내밀한 공간을 개방해야 한다는 논리가 지구 단위 지침으로 만들어져 있다. 담장은 만들어선 안 되고 대신해서 산울타리는 가능하다. 개인의 거주권, 정주권을 존중받지 못하는 너무나 큰 문제점을 안고 있다.
많은 건축가들이 이 문제에 대해 다양한 방법으로 목소리를 높였지만, 행정적으로 지구 단위 지침이 개정되는 속도는 더디기만 한 실정이다. 건축가들은 건축적인 방법으로 이 문제를 해결하는 방법을 찾았다.






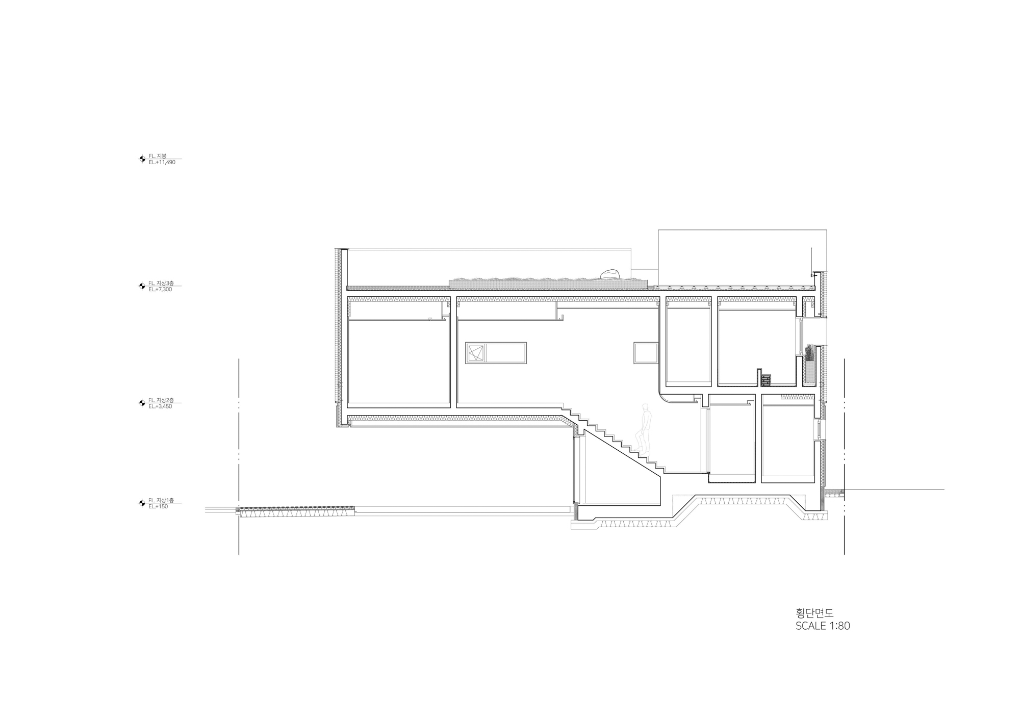
Section

Section
중정 집
중정 집은 내부에 마당을 만들고 담장 대신 건축물(집)로 외벽을 둘러서 완벽한 철옹성과 같은 집을 만들었다. 지구 단위 지침에 위반되지 않으면서 개인의 프라이버시를 확보할 수 있는 절묘하고 확실한 방법이었다. 이런 철옹성이 여기저기 들어서면서 지구 단위 계획 구역 지침의 의도와는 다른 형태의 도시가 만들어졌다.
선택적 거부권의 부재
'높은 벽으로 둘러쌓은 집 탓에 마을 이웃과 함께할 기회조차 완전히 차단하는 건 아닐까?'라는 고민이 들었다. 작은 변화를 통해 조금 더 나은 사회와 소통하는 방법을 찾고자 했다.




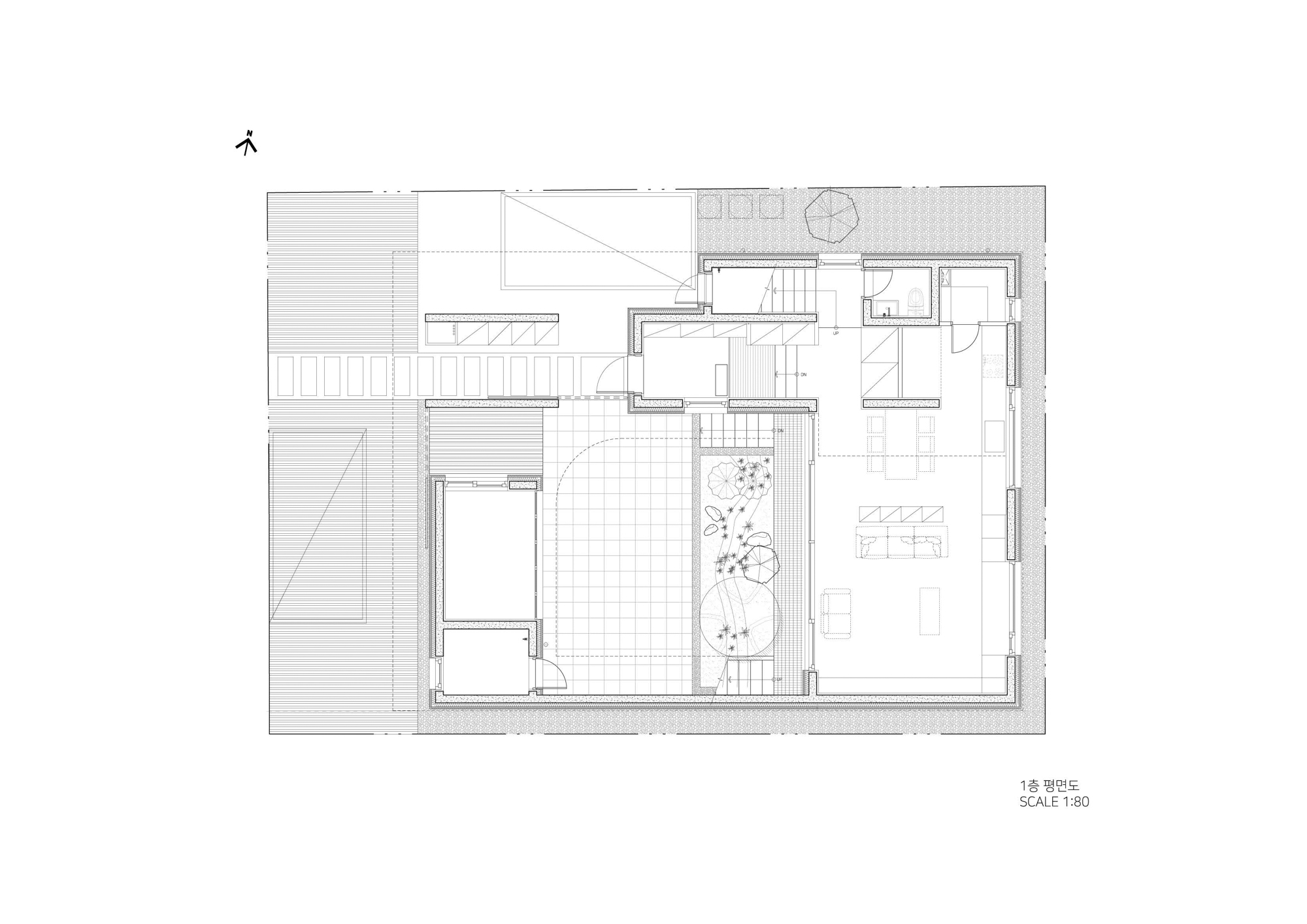
Plan_1F
선택적으로 열린 공간 만들기
가족의 내밀함을 지키기 위해 건물의 중심 공간을 비워 중정을 두되, 가로와 맞닿는 공간을 선택적으로 개방할 수 있도록 가변적인 벽을 세우길 제안했다. 벽은 도로와 면한 영역에 배치하여 가로와 분리하는 담장의 기능을 한다. 멀티룸 일부는 비워낸 후 마루를 설치하여 중정과 외부로 연결되는 장치로 사용하고자 했다. 마루 외부로 접한 벽에 가변형 루버를 설치하여, 루버의 열림과 닫힘을 통해 공간의 성격이 바뀌도록 했다.
가족의 일상생활 중엔 ’닫힘‘으로 가족의 일상을 지켜주고, 아이들이 친구들을 초대해서 마당에서 물놀이를 할 때는 ’열림‘으로 집과 마을을 연결하는 정자와 같은 역할을 할 것이다.




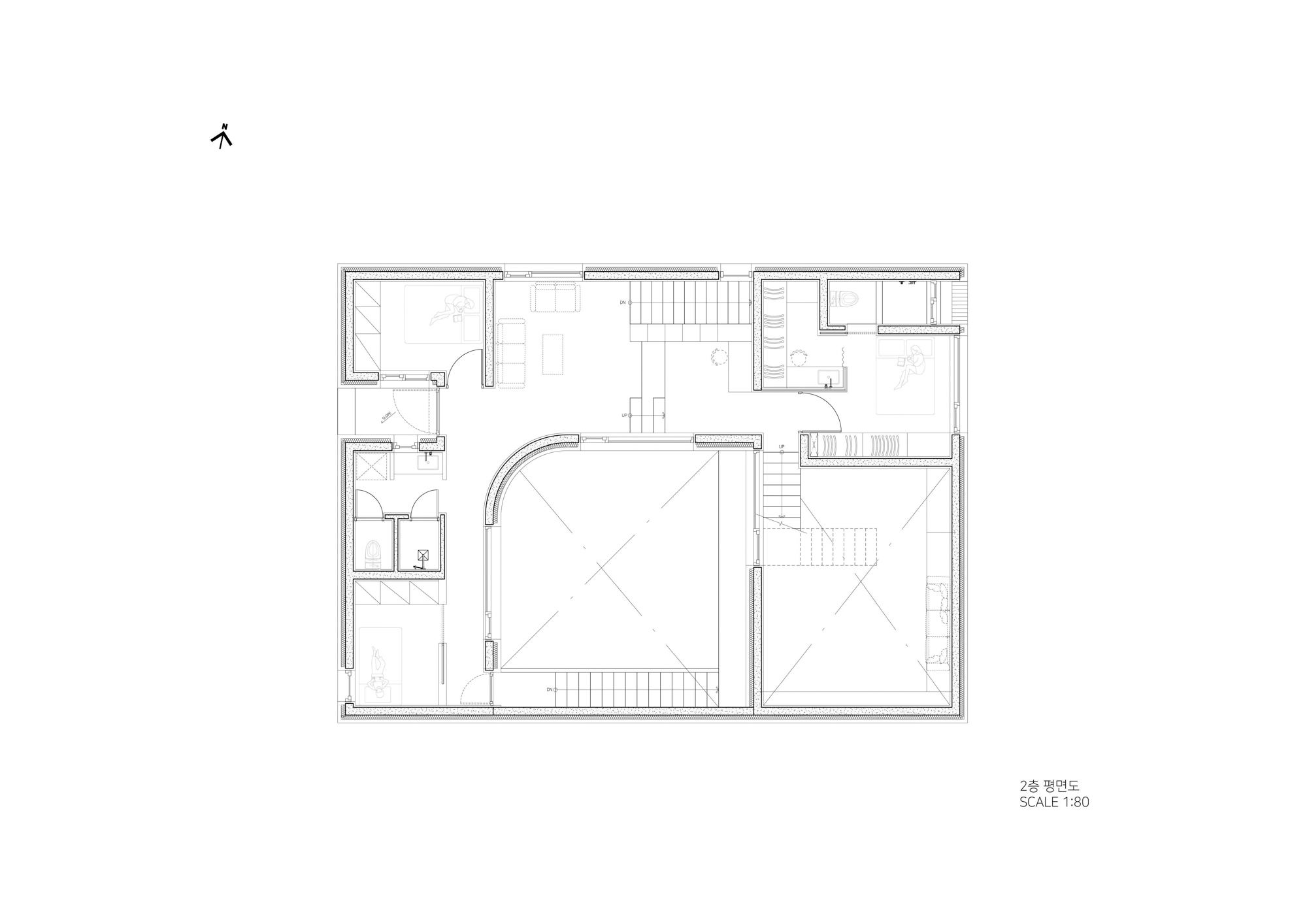
내부 공간은 3개 층으로 구성되어 있다. 1층은 공적 공간, 2층은 개인적인 공간 그리고 3층은 쉼을 위한 유연한 공간으로 구성되어 있다. 1층은 중정을 기준으로 도로와 면한 영역에 조금 더 개방적인 공간인 멀티룸과 창고를 배치 했고, 중정 안쪽 영역에는 주 생활 공간인 거실과 주방을 두었다. 2층은 가족들의 온전한 쉼을 위한 가족실과 침실 공간을 배치했다. 3층은 멀리 완주의 종남산과 서방산 자락이 펼쳐져 있는 멋진 풍경을 한눈에 담을 수 있다. 이 풍경을 온전히 담아내기 위해 서재에 북쪽으로 큰 창을 설치했으며, 외부 평지붕에 아이들과 캠핑을 즐길 수 있는 너른 데크를 설치하였다.





Plan_2F
멀티퍼포즈 공간
코로나 팬데믹은 우리의 일상과 생활 방식을 근본적으로 변화시켰다. 이러한 변화 탓에 집이 가져야 할 정체성도 변하고 있다. 재택근무와 온라인 교육의 증가로 인해, 집은 더욱 다목적으로 사용되는 공간이 되어야 한다. 집에서 거주하는 시간이 많아진 시대 상황을 고려해서, 다양한 기능을 수행하는 공간을 만들고자 했다. 사회적 거리두기와 사회적 분리의 필요성이 강조되었지만, 동시에 사회적 연결의 중요성도 재인식되었다. 따라서 연속해서 각각의 공간을 이어주는 내외부 동선을 만들었다. 이 동선을 따라 걷다 보면 자작나무가 있는 정원, 창밖에 정원과 나무 사이사이로 거실이 보이는 헬스장, 단단히 책이 쌓여있는 도서관과 풍경을 바라보며 사색에 잠길 수 있는 서재를 만날 수 있다.





Plan_3F

Plan_Roof
즐거움이 오는 집 : '호(好)옴'
엄마와 아들은 뜨거운 햇볕이 내리쬐는 여름날 중정에서 워터파크를 개장하여 친구들과 물놀이도 하고 툇마루에서 수박을 나눠 먹는 상상을 한다. 아빠는 아이들과 옥상에서 캠핑하기 위해 장비를 고르느라 여념이 없다. 아이들과 행복한 추억을 쌓기도 하고 때론 다투기도 하겠지만, 네 가족이 지지고 볶고, 가정을 꾸리면서 실현하고자 했던 이상을 일상에서 만들어가는 즐거움이 오는 집, '호(好)옴' 이 되길 기대한다.■


















