




Diagram

Diagram
풍경에 녹아들기
70년대, 대규모 택지개발로 아파트 공급이 서서히 주택시장의 주류로 성장해가던 시절, 한편으로는 민간 영세 건설업자에 의해 서너 채씩 똑같은 집들이 서울과 수도권 골목에 들어서기 시작했다. 주로 붉은 벽돌을 외장 재료로 사용하고, 낮고 장식이 있는 흰 난간이 두드러진 3층 집들이 대부분이었다. 거의 완성된 양식이라고 불러도 좋을 이러한 주택들은 지금도 여전히 밀도가 낮은 구도심의 뒷골목 풍경을 지배한다. 그러나 언제부터인가 모퉁이 집들을 기점으로 서서히 변화의 조짐이 엿보이기도 한다. 원더풀 우만은 이러한 도시적 맥락에 녹아드려는 노력에서 출발한다.





Site Analysis
기존 도시 조직에 들어서는 새 상가주택이란
수원 월드컵 경기장 근처 오래된 주택가에 있는 원더풀 우만은 47평짜리 땅에 지은 4층 규모의 아담한 상가주택이다. 1층과 2층은 상가인 근린생활시설이, 3층과 4층은 한 세대가 사용하는 주거인 단독주택이 자리해서 한 건물을 함께 사용하도록 설계했다.



Section
우리나라에서 상가주택이라 이름 붙이는 건물 형식에 정해진 공식이 있는 것은 아니지만, 대규모 택지개발지구에서 지구단위계획에 따라 짓게 되는 상가주택은 특정 지침 때문에 전형적인 형식이 만들어져 있다. 그러나 원더풀 우만은 기존의 도시 조직 한가운데 지어져 그 형식에서 벗어나 작은 규모의 땅에 맞는 합리적인 해법을 찾을 수 있었다.



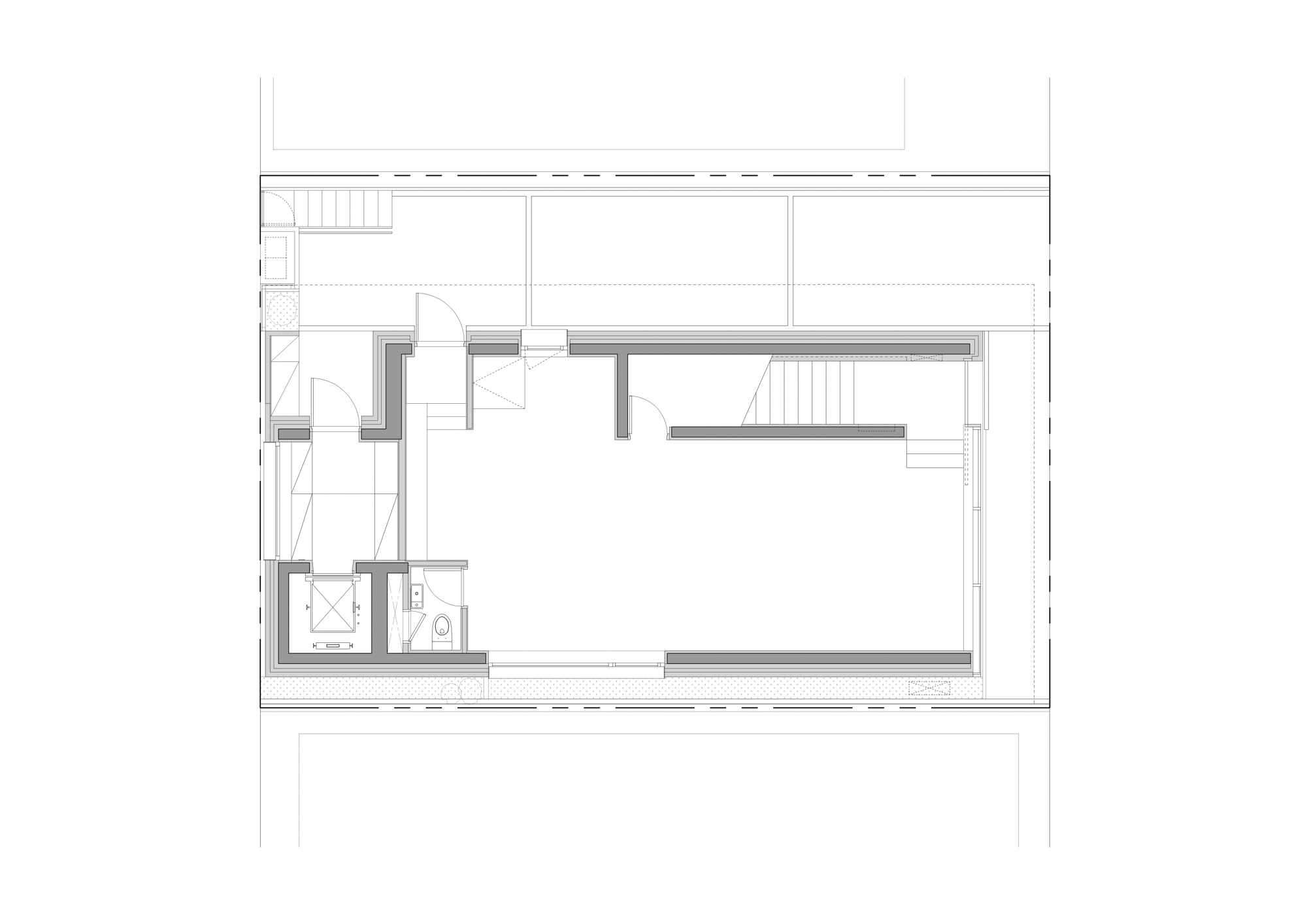
Plan_1F

Plan_2F
1층과 2층은 따로, 또 같이 쓸 수 있는 임대공간으로 계획되었다. 북동쪽 도로를 향한 폴딩도어와 덧창은 닫혀있을 때는 가로에 반복적인 리듬을 만들어 주변을 환기 하고, 때로는 활짝 열려 내외부가 소통하는 풍경을 연출하기도 한다.이 건물에는 몇 가지 독특한 특징이 있는데, 그 중 하나는 출입구의 구조다. 상가의 경우 1층과 2층을 각각, 또는 함께 사용할 수 있도록 출입구에 두 개의 문을 만들었다. 주택은 두 가지 방법으로 접근 가능하다. 상가의 계단을 올라간 2층에서 문을 열고 계단으로 한 층 더 올라가거나, 상가 출입구의 반대편 1층에 있는 주택의 현관을 거쳐 주택용 엘리베이터를 타고 올라갈 수 있다.






Plan_3F
푸른 물을 품은 붉은 집
이 주택의 가장 큰 특징은 최상층인 4층을 온전히 할애해 만든 실내수영장이다. 그래서 집 이름이 원더'풀' 우만이다.폭 2미터, 길이 10미터의 아담한 규모의 풀이지만, 개인 주택에 사계절 내내 이용할 수 있는 실내 수영장이 있는 경우는 흔치 않다. 특히 이 수영장은 최상층에 위치해 박공지붕에서 비롯된 높은 천장 공간을 활용할 수 있었고, 수원 주택가 풍경이 눈 아래 펼쳐지는 테라스와 연결되어 건축주의 온전한 힐링 공간이 되었다.





Plan_4F
수영장 수조를 형성하는 구조는 단순히 물의 하중을 담당하는 역할 뿐만 아니라, 길이 방향의 보로서 건물의 구조적 강성을 담당하는 핵심 부재로 작동할 수 있도록 계획했다.수영장은 박공 형태를 그대로 드러낸 천장의 양측에 설치된 간접조명과 수중에 설치된 조명을 통해 다양한 연출이 가능하다.




수영장에서 가장 중요한 디테일 중 하나는 오버플로우를 처리하는 거터의 디테일이다. 원더풀 우만 수영장은 바닥 타일과 동일한 재료로 거터 커버를 만들고, 그 틈으로 오버플로우 워터가 흘러들어 갈 수 있게 만들었다. 붉은 계열의 벽돌이지만, 주변의 70년대 양옥들에 쓰인 벽돌보다는 조금 더 밝은색을 선택하여 기존 도시 조직의 일부이면서도 새로 들어선 집으로서의 존재감을 드러낼 수 있는 균형점을 찾기 위해 노력했다.■



















