




Concept

Diagram
빌딩 숲 뒤편 주택가 골목에 조용히 자리 잡고 있는 오피스가 있다.복잡한 창과 벽, 어수선한 전기선들로 가득한 거리를 지나 마주하게 되는 이 오피스의 밝고 매끈한 첫인상은 다소 생경하다. 마치 어둠의 동굴을 통과해 마주하게 되는 작은 숲(르 보스케, Le Bosquet)처럼. 미를 초월한 아름다움은 내면으로부터 시작된다고 믿는 건축주의 바람을 바탕으로, 우리는 수수함 가득한 미려하고 고운 오브제를 계획했다.



Elevation

Elevation
클라이언트와 닮은 건축물, '르 보스케’
'르 보스케'는 잡목이 우거진 숲으로 경관적 효과를 가지기 위해 조성된 수림으로, 그 자연스러움만으로도 귀한 자태가 매력적이다. 클라이언트 기업은 성형이나 화장술 등 일시적 효과에 의존하지 않고, 지속적인 관리를 통한 아름다움을 추구하는 뷰티 & 에스테틱 전문 기업으로 약을 뿌리고 잔가지를 잘라내며 인공으로 가꿔진 정원의 꽃밭에 비할 수 없다. 이를 건축 개념으로 치환 했을 때 단순히 이질적 형태나 색감을 표현함으로써 돋보이게 하는 방식은 배제해야 했다. 건축주의 요구와 다양한 제약사항을 반영하는 가장 조화롭고 자연스러운 실리적인 구조가 되기 위한 연구가 요구됐다. 이는 측면 램프, 후면 주차장, 전면부 지하 선큰, 돌출된 계단실, 전면의 떠 있는 벽, 그리고 후면의 테라스 배치로 귀결되었다.



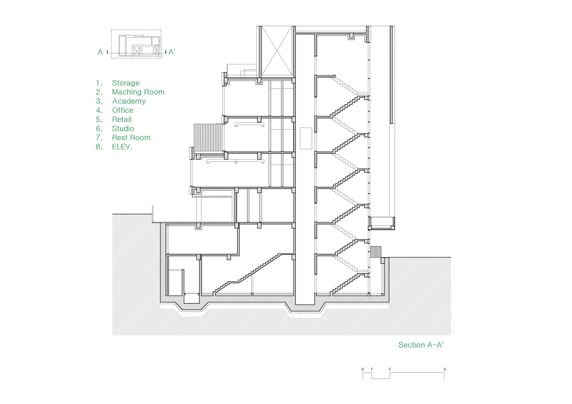
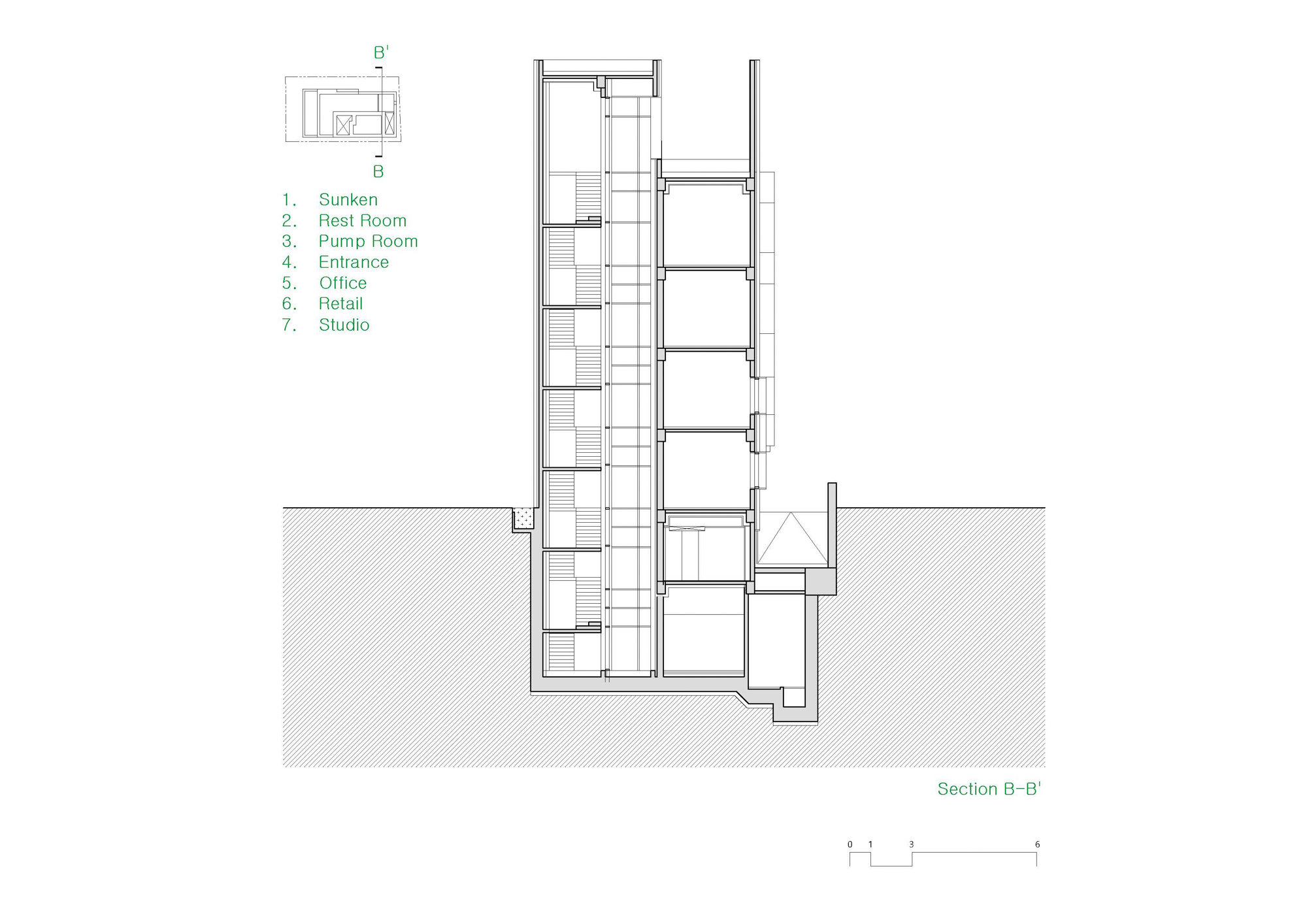
Section

Section
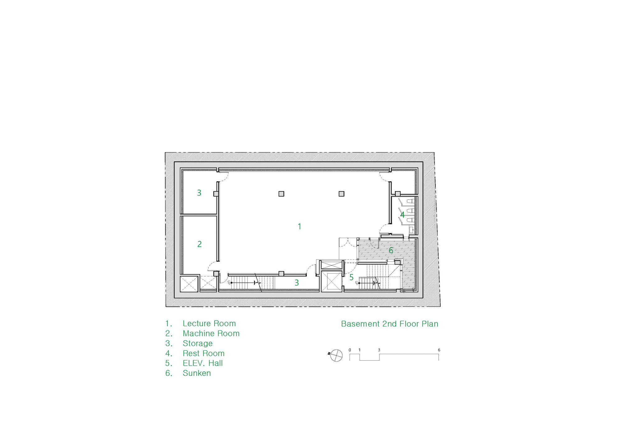
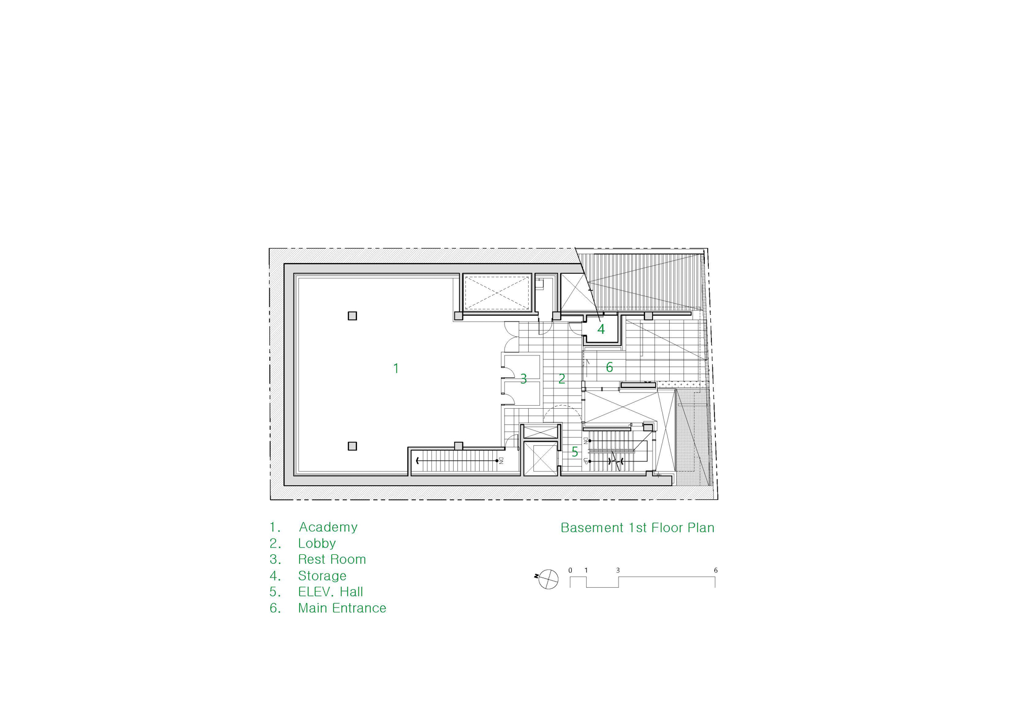
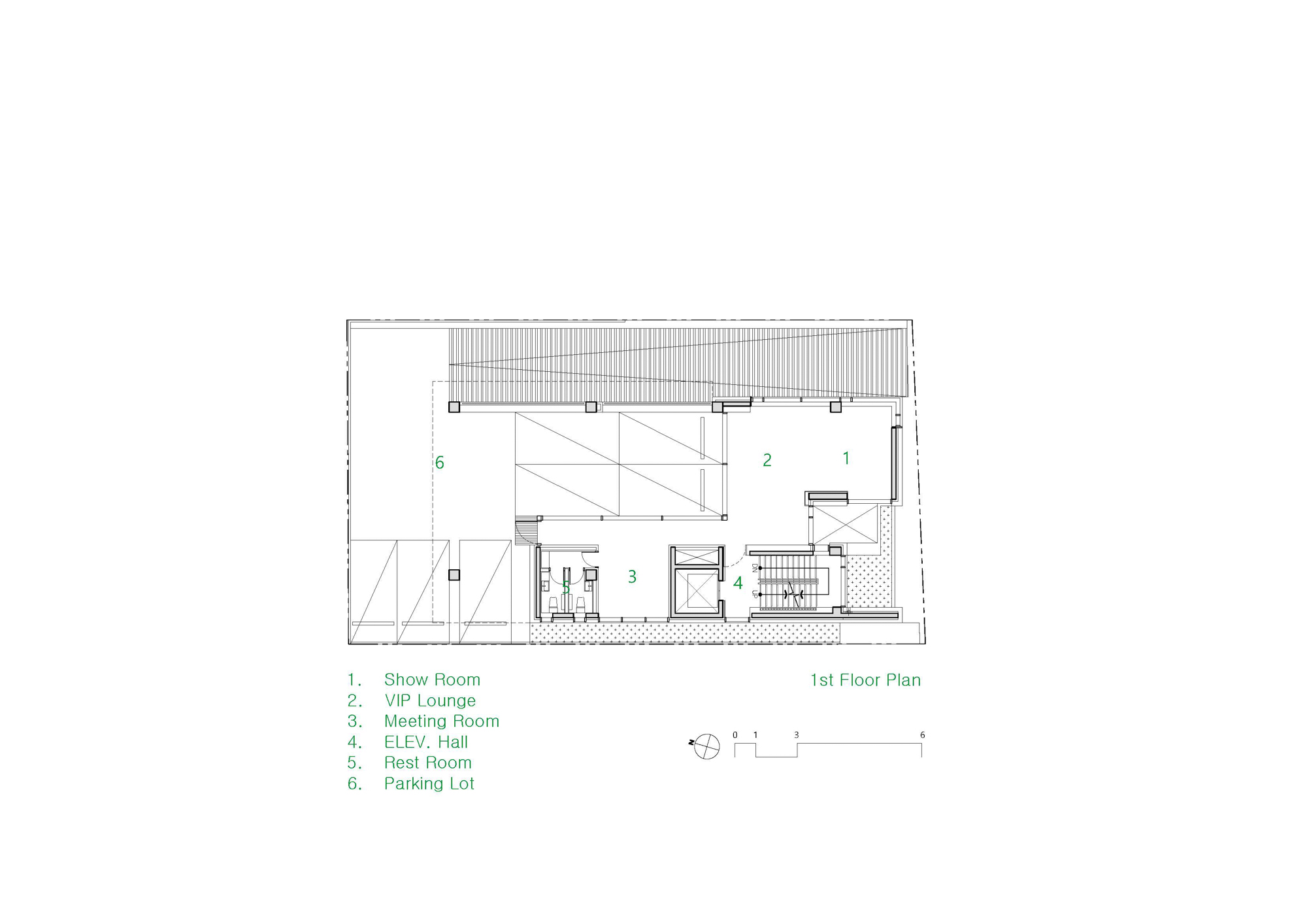
대지의 고저 차를 통해 지하 1층을 지상 1층처럼 보이게 하여 주 출입구 로비로 계획한 것은 이 땅에서 가치를 극대화할 수 있는 방법이었다. 이로써 외부인의 출입이 잦은, 그리고 비교적 채광이 필요치 않은 지하 1층 교육장과 지하 2층 강연장 동선의 길이를 자연스레 축소되었다. 특별한 손님이 특별한 공간을 느끼며 들어오도록 지상 1층에 프라이빗한 VIP 접견실 및 쇼룸을 배치하였다.





Plan_B2

Plan_B1

Plan_1F
자발적 감각을 유도하는 경험의 공간
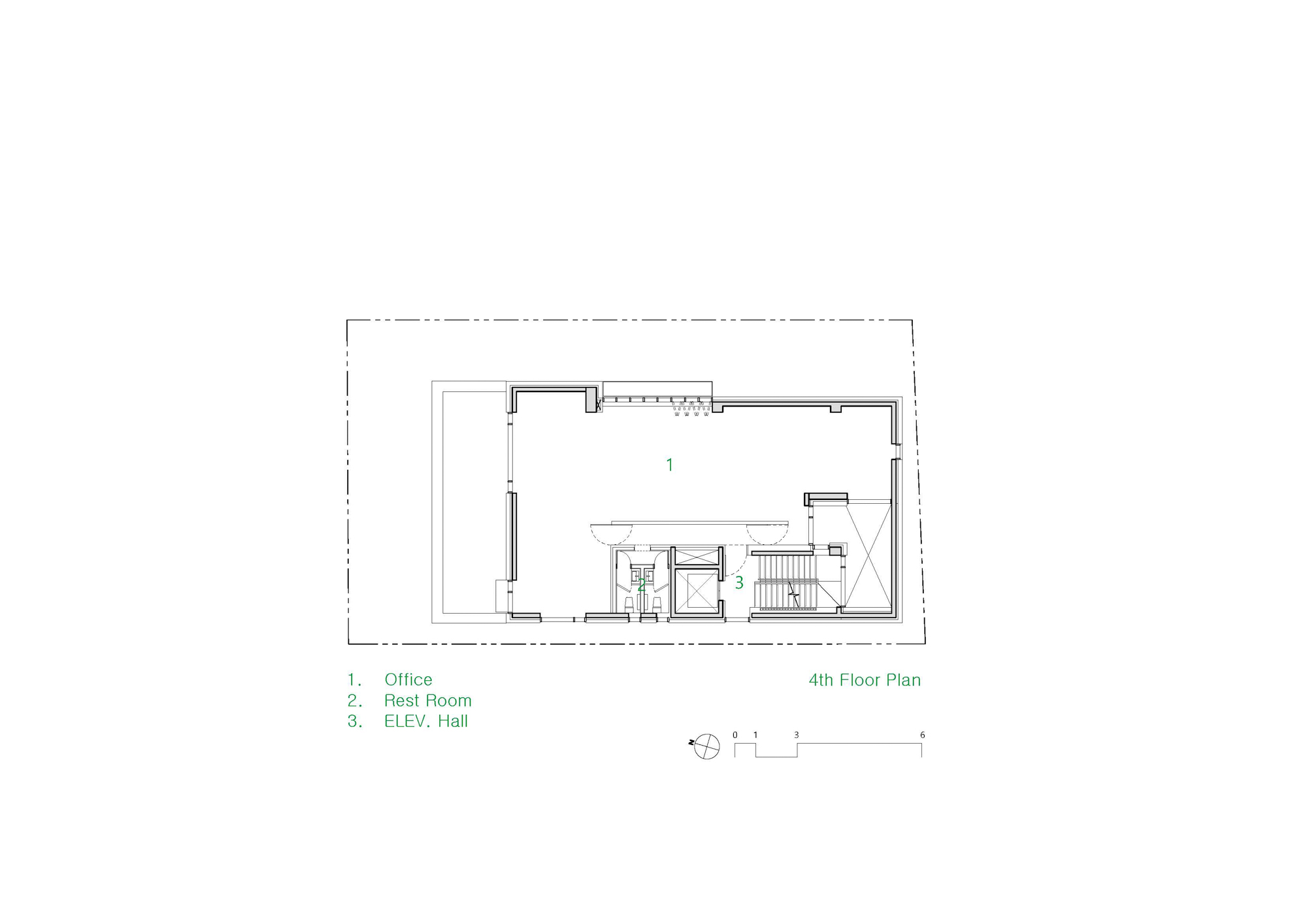
지상 2층부터 4층까지는 오피스의 핵심 구성원들이 업무 하는 곳으로 풍부한 공간감을 만끽하며 언제나 창의성 가득한 장소가 될 수 있도록 계획했다. 복잡하고 불편한 출근길, 도심 속 기나긴 골목을 지나 힘겹게 사옥에 들어서면 곳곳에 초록이 함께한다. 주변 시선을 차단한 조용한 벽을 마주한 아늑함은 차분하게 기분을 환기할 수 있게 한다. 전면의 떠 있는 벽은 주택가에 위치한 오피스임을 고려하여 서로의 프라이버시 보호하고, 적정하게 남향의 직사광 빛을 차단하여 눈부심을 감쇄 시키는 역할도 함께 한다. 계단에서도 그 벽을 바라보며 올라갈 수 있는데, 수직으로 이어진 긴 보이드 공간과 개폐된 틈은 움직이는 이용자의 시점변화에 따라 다양한 시선을 유도하여 입체적 공간감을 선사해서 보다 넓고 풍부한 공간이라는 착각을 불러일으킨다. 그렇게 끝까지 다다르면 이용자들 누구나 사용할 수 있는 휴게와 각종 사내행사가 가능한 열린 공간의 옥상정원에 도달하게 되고, 긴 협곡을 지나 탁 트인 광야에 도달한 것 같은 극적인 개방감을 끌어올린다.





Plan_2F

Plan_3F
공중에 떠 있는 3그루의 나무
'르 보스케'가 위치한 논현동의 이 지역은 1970년대 강남개발 초기부터 정재계 및 법조인들이 거주하는 고급 주택가였다. 그 당시 건축물은 도로를 기준으로 하여 높은 담과 차고가 있었고 계단을 따라 높은 레벨로 올라서서 정면에는 정원, 후면에는 주택이 배치된 경향이 많았다. 현재까지도 그 흔적이 많이 남아있어 정원의 고목은 가지가 풍성하여 나뭇잎들이 눈높이 이상의 높이에서 보이는 게 이 지역의 특징인데, 이러한 점이 이곳만의 역사라는 생각에 그 흔적을 재해석하여 전면의 떠 있는 벽 위의 조경수를 계획했다. 이 3그루의 자작나무는 건축주의 사업 구조 상 큰 의미를 부여하는 3개의 조직을 상징한다. 항상 관심을 주며 잘 가꾸고 돌봐주어야 하는 생명과 그들 사이에 동질감을 느끼게 하여 지속가능한 발전을 향한 기업의 포부를 은유적으로 드러내었다. 또한, 사옥을 찾아오는 방문객이나 거리를 오다니는 행인들에게 생경한 절차로서 ‘르 보스케’로 자연스럽게 눈길이 가게 하는 요소임과 동시에 어떠한 조형물로 대체할 수 없는 기업의 특별한 오브제가 되었다.




Plan_4F

Plan_Roof
척박한 환경에도 불구하고 고고한 자태로 그 자리에 조용히 자리한 ‘르 보스케’는 주변의 여러 고난과 역경을 극복하고 스스로 잘 가꾸어 보존되었기 때문에 그 의미가 있다. 이 건축물 또한 다양하고 복잡한 도시 환경이라는 야생에 적절히 대응하고 적응하며 생존에 이르게 된 유기체다. 이 건축물을 사용하는 기업도 그러한 뜻에 힘입어 오랫동안 사랑받길 기원한다. ■

















